Trouver...

Language: FR

Devise: EUR

Vente Maison/villa 4 pièces

Publié le 22 January 2026
Type
Bien immobilier
Tarif
180 000 €
Chambres
3
Salles de bain
0

Vente Maison/villa 4 pièces

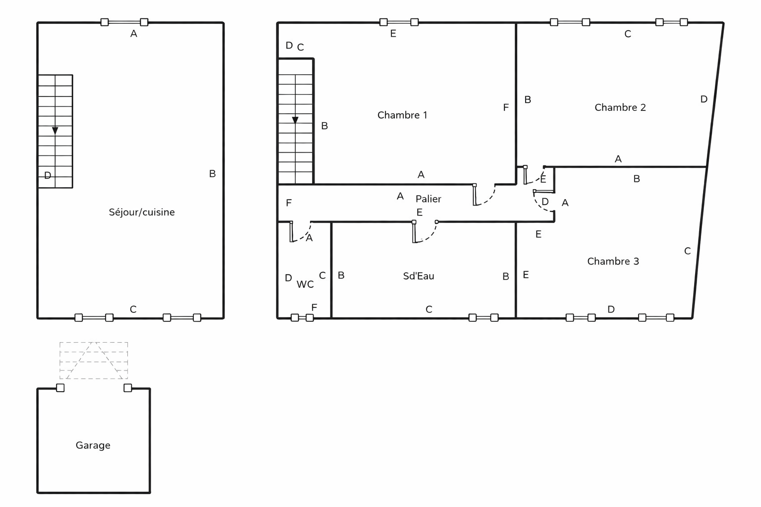
Iad France - Natacha Carbonel vous propose : Aux portes de Libourne, venez découvrir cette charmante maison de ville avec jardin. Au rez-de-chaussée, vous trouverez une spacieuse pièce de vie de 27 m² avec sa cuisine aménagée. À l' étage, un dégagement distribue 3 chambres spacieuses, une salle d'eau et un WC séparé. La maison bénéficie d'un jardin, idéal pour profiter des beaux jours et pour les moments de détente en plein air. Un garage vous permettra de stationner facilement. L'ensemble est en bon état général, offrant un cadre de vie agréable. Les équipements de confort tels que la fibre optique et l'assainissement collectif contribuent à un quotidien facilité. Le système de chauffage individuel avec une pompe à chaleur réversible, installée en 2025, assure une température agréable en toutes saisons. Une maison fonctionnelle, agréable à vivre et offrant un excellent potentiel, à découvrir sans tarder. Honoraires d'agence à la charge du vendeur. Information d'affichage énergétique sur ce bien : classe ENERGIE D indice 166 et classe CLIMAT D indice 31. Les informations sur les risques auxquels ce bien est exposé, y compris l'obligation légale de débroussaillement, sont disponibles sur le site Géorisques : http://www.georisques.gouv.fr. La présente annonce immobilière a été rédigée sous la responsabilité éditoriale de Mme Natacha Carbonel mandataire indépendant en immobilier (sans détention de fonds), agent commercial de la SAS I@D France immatriculé au RSAC de Libourne sous le numéro 831324967, titulaire de la carte de démarchage immobilier pour le compte de la société I@D France SAS.

À proximité

Recherche des commodités à proximité...

Détails de l'annonce

Localisation

Ville
Libourne
Pays
FR

Diagnostics / Énergie

Diagnostic DPE
166
Diagnostic GES
31

Surfaces / Pièces / Composition

Nombre d’étages
2

Chauffage et diagnostics

Diagnostic de performance énergétique (DPE)
a
b
c
d
e
f
g
Indice d'émission de gaz à effet de serre (GES)
a
b
c
d
e
f
g
Rappelez-moi