Type
Bien immobilierTarif
285 000 €Chambres
7Salles de bain
0Vente Maison/villa 7 pièces
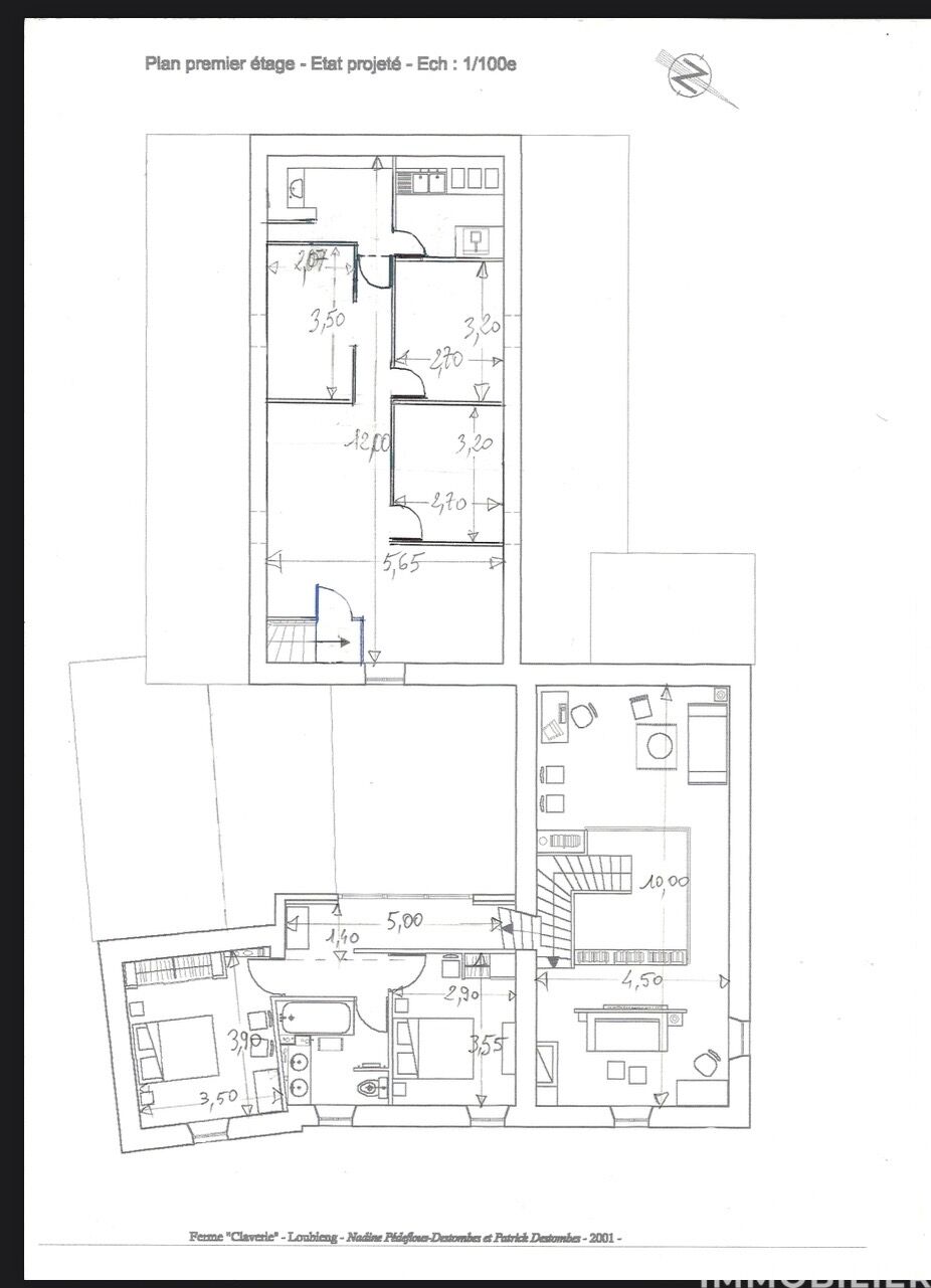
Iad France - Karine Vingtan vous propose : Charmante maison ancienne de 1870, d'une superficie habitable de 170 m² offrant de multiples possibilités par sa disposition (plans fournis parmi les photos) Ce bien se compose de deux parties, une habitation et une dépendance, qui dispose au Rez de chaussée d'une belle pièce de 120 m² non comptabilisée dans la surface actuelle puisqu'elle n'a pas de chauffage installé, mais qui est cependant possible (poêle à bois, radiateurs). Dans la description je vous détaille les différentes parties. Pour l'habitation principale : L'entrée nous offre un bel espace, donnant accès sur un patio ou cour intérieure et à une pièce pouvant servir de bureau ou de chambre en Rez de chaussée avec accès direct sur l'extérieur. La maison nous accueille dans une pièce généreuse avec un coté salon équipé d'une cheminée et de l'autre la cuisine ouverte sur le coin salle à manger et une salle d'eau avec WC. L'escalier nous mène à deux parties, dont la mezzanine qui peut prétendre comme aujourd'hui à un espace bureau et à un espace couchage, et l'autre à deux belles chambres et une salle de bains avec WC. Pour la dépendance : La grande salle de 120 m² peut prétendre à une belle pièce de réception, un atelier d'artiste ou une salle d'expo, une grande salle de jeux, etc. À l'étage nous retrouvons trois petites chambres, avec un espace central et un coin salon, possibilité sur l'espace restant de créer un coin cuisine et une salle d'eau pour une totale indépendance. Cette maison atypique présente de multiples possibilités, par ses atouts et sa superficie. Elle offre différents styles par de beaux parquets, des poutres et pierres apparentes et des espaces avec beaucoup de charme autant à l'intérieur qu'à l'extérieur. Quelques travaux seront à prévoir à l'extérieur. Terrain arboré avec charmant petit cours d'eau dans le bas. À 10 minutes d'Orthez et 20 mn de Mourenx, mais également à 1 heure des plages et 1h30 des montagnes pour les skieurs. Caractéristiques Chauffage électrique par Pompe à Chaleur (plancher chauffant au rez de chaussée, radiateurs à l'étage) Connexion à la fibre haut débit (téléphone, télévision et internet) 2 niveaux 170 m² + dépendance Construction de 1870 et 1905 Je vous attends pour de prochaines visites. Honoraires d'agence à la charge du vendeur. Information d'affichage énergétique sur ce bien : classe ENERGIE C indice 128 et classe CLIMAT A indice 4. Les informations sur les risques auxquels ce bien est exposé, y compris l'obligation légale de débroussaillement, sont disponibles sur le site Géorisques : http://www.georisques.gouv.fr. La présente annonce immobilière a été rédigée sous la responsabilité éditoriale de Mme Karine Vingtan mandataire indépendant en immobilier (sans détention de fonds), agent commercial de la SAS I@D France immatriculé au RSAC de Pau sous le numéro 907983217, titulaire de la carte de démarchage immobilier pour le compte de la société I@D France SAS.
Ce mois
Cette annonce est récente
À proximité
Recherche des commodités à proximité...
Détails de l'annonce
Localisation
Ville
Loubieng
Pays
FR
Diagnostics / Énergie
Diagnostic DPE
128
Diagnostic GES
4
Surfaces / Pièces / Composition
Nombre d’étages
2
Chauffage et diagnostics
Diagnostic de performance énergétique (DPE)
a
b
c
d
e
f
g
Indice d'émission de gaz à effet de serre (GES)
a
b
c
d
e
f
g
