Trouver...

Language: FR

Devise: EUR

Vente Maison traditionnelle 4 pièces

Publié le 15 January 2026
Type
Bien immobilier
Tarif
189 000 €
Chambres
0
Salles de bain
0

Vente Maison traditionnelle 4 pièces

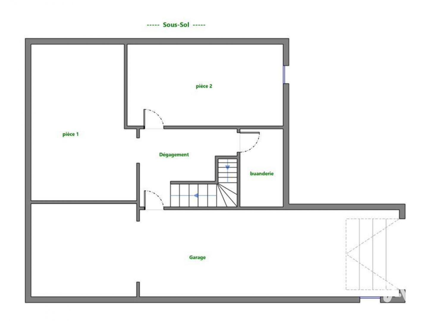
Iad France - Bastien CAROLLO vous propose : De découvrir à seulement quelques minutes de Carcassonne, dans le charmant village de Villedubert, cette maison traditionnelle pleine de promesses. Édifiée dans les années 70, elle offre une surface habitable d’environ 91 m² surélevée sur un vaste garage de la même superficie, idéal pour du stockage, un atelier ou un futur aménagement complémentaire. Implantée sur un terrain généreux de 700 m², la propriété bénéficie d’une exposition plein sud, baignant toutes les pièces de lumière naturelle tout au long de la journée. L’espace de vie situé à l’étage se compose actuellement de quatre pièces à réagencer selon vos envies, offrant ainsi une toile vierge à personnaliser entièrement. Le calme environnant, la structure saine et la configuration sur sous-sol complet en font un bien rare, parfait pour créer un lieu de vie confortable, lumineux et fonctionnel. Que ce soit pour une résidence principale ou un projet locatif, cette maison constitue une opportunité idéale pour les amateurs de rénovation en quête d’un projet valorisant. Laissez-vous inspirer par son potentiel et imaginez la maison qui vous ressemble, dans un cadre paisible et verdoyant. Je reste à votre disposition afin d'organiser une visite. Bastien Carollo Honoraires d'agence à la charge du vendeur. Information d'affichage énergétique sur ce bien : classe ENERGIE D indice 246 et classe CLIMAT B indice 8. Les informations sur les risques auxquels ce bien est exposé, y compris l'obligation légale de débroussaillement, sont disponibles sur le site Géorisques : http://www.georisques.gouv.fr. La présente annonce immobilière a été rédigée sous la responsabilité éditoriale de M Bastien CAROLLO mandataire indépendant en immobilier (sans détention de fonds), agent commercial de la SAS I@D France immatriculé au RSAC de CARCASSONNE sous le numéro 514044874, titulaire de la carte de démarchage immobilier pour le compte de la société I@D France SAS.

À proximité

Recherche des commodités à proximité...

Détails de l'annonce

Localisation

Ville
Villedubert
Pays
FR

Diagnostics / Énergie

Diagnostic DPE
246
Diagnostic GES
8

Chauffage et diagnostics

Diagnostic de performance énergétique (DPE)
a
b
c
d
e
f
g
Indice d'émission de gaz à effet de serre (GES)
a
b
c
d
e
f
g
Rappelez-moi