Vente Maison/villa 4 pièces
Type
Bien immobilierTarif
365 000 €Chambres
3Salles de bain
0Vente Maison/villa 4 pièces
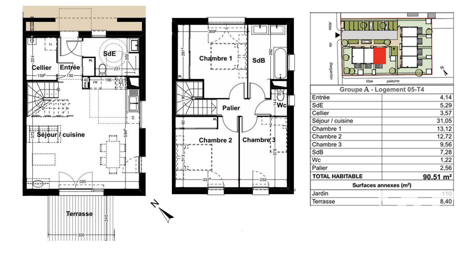
Iad France - Thibaut Faure vous propose : St Jean D'illac - Le Las A proximité immédiate des écoles, dans un environnement résidentiel et calme. Maison de 91 m² env avec un jardin de 110 m² env + terrasse Elle se compose rdc, d'une entrée, un cellier, une salle d'eau avec wc, une pièce de vie avec salon-séjour ouvert sur cuisine. À l'étage dégagement, 3 chambres, salle de bain et wc indépendant. La presente annonce immobiliere vise 3 lots situés dans une copropriété de 21 lots au total et ne faisant l'objet d'aucune procédure en cours citée à l'article L. 721-1 du code de la construction et de l'habitation. Montant moyen mensuel de charges déclaré par le vendeur : 70€ par mois (soit 840 € annuel). Honoraires d'agence à la charge du vendeur. Bien non soumis au DPE. Les informations sur les risques auxquels ce bien est exposé, y compris l'obligation légale de débroussaillement, sont disponibles sur le site Géorisques : http://www.georisques.gouv.fr. La présente annonce immobilière a été rédigée sous la responsabilité éditoriale de M Thibaut Faure mandataire indépendant en immobilier (sans détention de fonds), agent commercial de la SAS I@D France immatriculé au RSAC de bordeaux sous le numéro 804099117, titulaire de la carte de démarchage immobilier pour le compte de la société I@D France SAS.
Détails de l'annonce
Localisation
Ville
Saint-Jean-d'Illac
Pays
FR
Surfaces / Pièces / Composition
Nombre d’étages
2
Chauffage et diagnostics
Diagnostic de performance énergétique (DPE)
a
b
c
d
e
f
g
Indice d'émission de gaz à effet de serre (GES)
a
b
c
d
e
f
g
