Trouver...

Language: FR

Devise: EUR

Type
Bien immobilier
Tarif
1 196 000 €
Chambres
12
Salles de bain
0

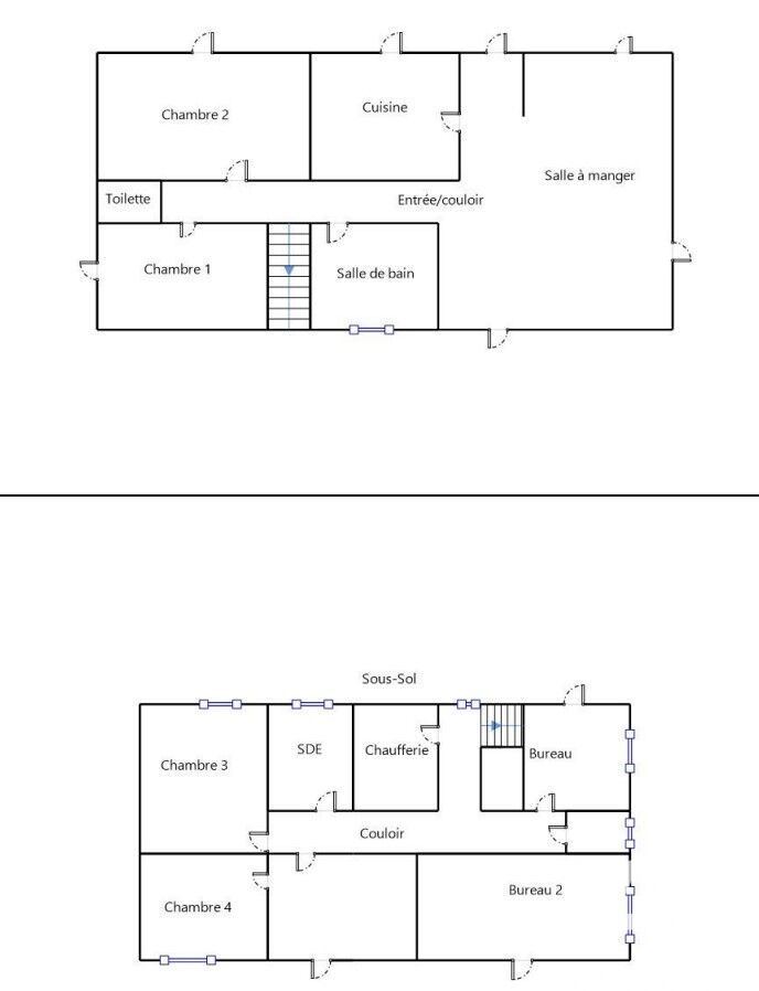
Vente Maison/villa 17 pièces

Iad France - Julie Petrich-Combe vous propose : Découvrez le charme de cette propriété qui plonge le visiteur au cOEur de l'histoire de Saint-Maximin la Sainte Baume. Composé d'une maison de maître datant en partie du 17ème siècle et du 18ème siècle de l'autre, ce bien offre une vue exceptionnelle sur Saint-Maximin et ses alentours. Une longue allée conduit à la majestueuse demeure qui se dresse sur trois niveaux. Elle se décompose comme suit : Au RDC : deux salons dont un de récéption, une salle à manger, une cuisine, une aile incluant une grande cuisine d'été et un autre salon. Un logement indépendant et attenant pouvant faire office de maison de gardien complète ce niveau. Cette partie se compose d’une cuisine, d’un grand séjour, d’ une chambre et d’une salle de bain. Le premier étage comprend 8 chambres, 2 salles de bain et 1 salle d’eau. Au deuxième étage se trouvent 2 grandes chambres, une salle d’eau et une bibliothèque qui saura ravir les férus de lecture. Le magnifique parc arboré offre un terrain de jeu illimité, il comporte de belles restanques, et la piscine située à l'arrière de la maison propose un coin de détente à l’abri des regards. Les nombreux oliviers et arbres fruitiers apportent charme et authenticité à cette bâtisse provençale. La propriété s’étend sur un terrain de 1,8 hectares. Un grand atelier à proximité de la piscine complète ce bien. Des travaux de rénovation sont à prévoir. Cette propriété offre une vue à couper le souffle, elle a traversé l’Histoire et procure un sentiment de quiétude, comme si le temps s’était arrêté. Dans la très jolie commune de Saint-Maximin la Sainte Baume, à seulement 30 minutes d’Aix-en-Provence, elle offre de nombreuses possibilités d’aménagements. Contactez-moi pour échanger autour de votre projet immobilier et avoir la chance de visiter cette propriété. Honoraires d'agence à la charge de l'acquéreur. Prix honoraires inclus : 1196000 euros. Prix hors honoraires : 1150000 euros. Honoraires TTC à la charge de l'acquéreur (4,00% du prix du bien hors honoraires) : 46000 euros. Information d'affichage énergétique sur ce bien : classe ENERGIE D indice 201 et classe CLIMAT B indice 6. Les informations sur les risques auxquels ce bien est exposé, y compris l'obligation légale de débroussaillement, sont disponibles sur le site Géorisques : http://www.georisques.gouv.fr. La présente annonce immobilière a été rédigée sous la responsabilité éditoriale de Mme Julie Petrich-Combe mandataire indépendant en immobilier (sans détention de fonds), agent commercial de la SAS I@D France immatriculé au RSAC de AIX EN PROVENCE sous le numéro 822678298, titulaire de la carte de démarchage immobilier pour le compte de la société I@D France SAS.

À proximité

Recherche des commodités à proximité...

Détails de l'annonce

Localisation

Ville
Saint-Maximin-la-Sainte-Baume
Pays
FR

Diagnostics / Énergie

Diagnostic DPE
201
Diagnostic GES
6

Surfaces / Pièces / Composition

Nombre d’étages
3

Chauffage et diagnostics

Diagnostic de performance énergétique (DPE)
a
b
c
d
e
f
g
Indice d'émission de gaz à effet de serre (GES)
a
b
c
d
e
f
g
Rappelez-moi