Trouver...

Language: FR

Devise: EUR

Vente Appartement 2 pièces

Publié le 20 October 2025
Type
Bien immobilier
Tarif
271 000 €
Chambres
0
Salles de bain
0

Vente Appartement 2 pièces

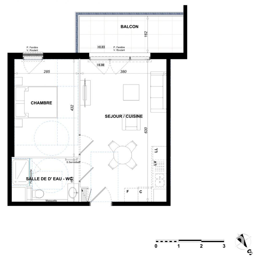
Iad France - Matthieu Chionchini (06 52 78 35 06) vous propose : Élégant 2 pièces avec balcon et parking – Antibes Dans un environnement calme et verdoyant d’Antibes, découvrez ce bel appartement 2 pièces situé au 3 ? étage d’une résidence récente et moderne. Conçu pour offrir un confort optimal et une luminosité naturelle, il bénéficie d’une exposition nord-est et d’un balcon de 7,4 m² environ, parfait pour profiter des matinées ensoleillées. Ce logement séduira autant les investisseurs que les particuliers à la recherche d’un pied-à-terre sur la Côte d’Azur. ________________________________________ ? Caractéristiques principales •Type : Appartement T2 •Étage : 3? étage •Surface habitable : 40,6 m² environ •Surface extérieure : 7,4 m² environ (balcon) •Exposition : Nord-Est •Stationnement : 1 place privative en sous-sol •Chauffage : Électrique individuel à faible consommation •Isolation : Conforme aux dernières normes thermiques et phoniques ________________________________________ ? Prestations et confort •Résidence sécurisée avec accès piétonnier et espaces verts paysagers •Volets roulants électriques •Carrelage grand format dans le séjour et la cuisine •Salle d’eau équipée : meuble vasque, miroir, sèche-serviettes et faïence murale •Chambre spacieuse avec grand placard intégré •Double vitrage haute performance •Ascenseur, local vélos, et stationnement en sous-sol •Environnement calme et résidentiel ________________________________________ ? Cadre de vie L’appartement bénéficie d’un emplacement privilégié, proche de toutes les commodités : •Commerces, écoles et transports accessibles à pied •Accès rapide à Sophia Antipolis et aux axes principaux •À quelques minutes des plages et du centre historique d’Antibes •Quartier à la fois paisible et connecté, idéal pour concilier travail et détente ________________________________________ ? Données financières •Prix de vente : 281 000 € •Frais de notaire à la charge du vendeur •Parking inclus dans le prix •Loyer de marché estimé : 725 € / mois •Rentabilité brute estimée : environ 3,1 % •Zone locative recherchée (zone A) ________________________________________ ? Les points forts •Pièce de vie lumineuse de plus de 23 m² environ •Chambre confortable de 12,3 m² environ •Balcon de 7,4 m² environ sans vis-à-vis •Prestations modernes et finitions soignées •Parking privatif sécurisé inclus •Frais de notaire offerts •Emplacement idéal pour habiter ou investir à Antibes Honoraires d’agence à la charge du vendeur. Bien non soumis au DPE. Les informations sur les risques auxquels ce bien est exposé sont disponibles sur le site Géorisques : www.georisques.gouv.fr. La présente annonce immobilière a été rédigée sous la responsabilité éditoriale de M. Matthieu Chionchini EI (ID 85877), mandataire indépendant en immobilier (sans détention de fonds), agent commercial de la SAS I@D France immatriculé au RSAC de Grasse sous le numéro 752939330, titulaire de la carte de démarchage immobilier pour le compte de la société I@D France SAS. Retrouvez tous nos biens sur notre site internet. www.iadfrance.fr.

À proximité

Recherche des commodités à proximité...

Détails de l'annonce

Localisation

Ville
Antibes
Pays
FR

Surfaces / Pièces / Composition

Nombre d’étages

Chauffage et diagnostics

Diagnostic de performance énergétique (DPE)
a
b
c
d
e
f
g
Indice d'émission de gaz à effet de serre (GES)
a
b
c
d
e
f
g
Rappelez-moi