Type
Bien immobilierTarif
483 000 €Chambres
4Salles de bain
0Vente Maison/villa 8 pièces
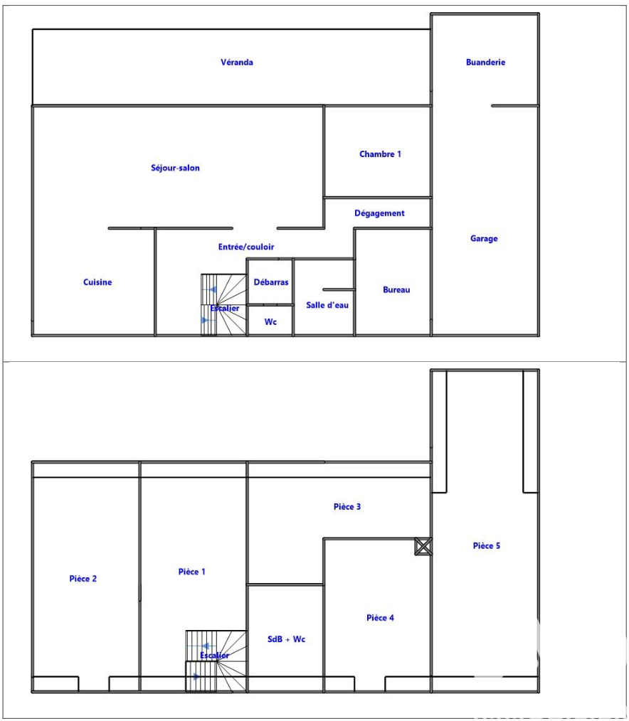
Iad France - Sofyane Tarraf vous propose : - Belle découverte pour cette maison vivable de PLAIN-PIED à 1h de Paris et à 15min de Chantilly / Senlis ! - Dans la commune de VERNEUIL-EN-HALATTE, venez découvrir cette magnifique propriété vivable de PLAIN-PIED située au fond d’une impasse à l'abri des regards ! D’une superficie de 195 m² (280 m² au sol et avec la véranda), celle-ci a été construite en 1995 et est édifiée sur un vide sanitaire. Elle s'articule sur 2 niveaux très spacieux : * Au Rdc, vous découvrirez une entrée, un double séjour de 45 m² avec cheminée insert donnant sur une véranda de 50 m² avec vue époustouflante sur le jardin, une cuisine ouverte complètement équipée / aménagée, une chambre de 12 m², un bureau, une salle d'eau avec douche, un dressing, un wc, une cuisine d'été avec buanderie. * Au 1er étage : une grande pièce palière avec coin bureau, une salle de bain avec douche, baignoire et wc, 3 chambres spacieuses de 20 m², 26 m² et 33 m² (possibilité de créer une 4ème chambre). * A l'extérieur : une cour pavée pouvant accueillir entre 6 et 8 véhicules, un garage de 30 m² entièrement carrelé, un magnifique jardin arboré avec abris à bois. Les atouts : - Vivable de PLAIN-PIED - DPE en C avec pompe à chaleur - En impasse à l'abri des regards - Proche de toutes commodités (écoles, commerces. ) - Paris à 1h en voiture ou 25min en train avec la gare de CREIL qui accueillera le TGV Roissy-Picardie en 2029 ! Ne laissez pas cette opportunité vous passez sous le nez ! Honoraires d'agence à la charge du vendeur. Information d'affichage énergétique sur ce bien : classe ENERGIE C indice 154 et classe CLIMAT C indice 12. Les informations sur les risques auxquels ce bien est exposé, y compris l'obligation légale de débroussaillement, sont disponibles sur le site Géorisques : http://www.georisques.gouv.fr. La présente annonce immobilière a été rédigée sous la responsabilité éditoriale de M Sofyane Tarraf mandataire indépendant en immobilier (sans détention de fonds), agent commercial de la SAS I@D France immatriculé au RSAC de COMPIEGNE sous le numéro 888786159, titulaire de la carte de démarchage immobilier pour le compte de la société I@D France SAS.
Cette semaine
Cette annonce est récente
À proximité
Recherche des commodités à proximité...
Détails de l'annonce
Localisation
Ville
Verneuil-en-Halatte
Pays
FR
Diagnostics / Énergie
Diagnostic DPE
154
Diagnostic GES
12
Surfaces / Pièces / Composition
Nombre d’étages
2
Chauffage et diagnostics
Diagnostic de performance énergétique (DPE)
a
b
c
d
e
f
g
Indice d'émission de gaz à effet de serre (GES)
a
b
c
d
e
f
g
