Type
Bien immobilierTarif
135 000 €Chambres
4Salles de bain
0Vente Maison/villa 6 pièces
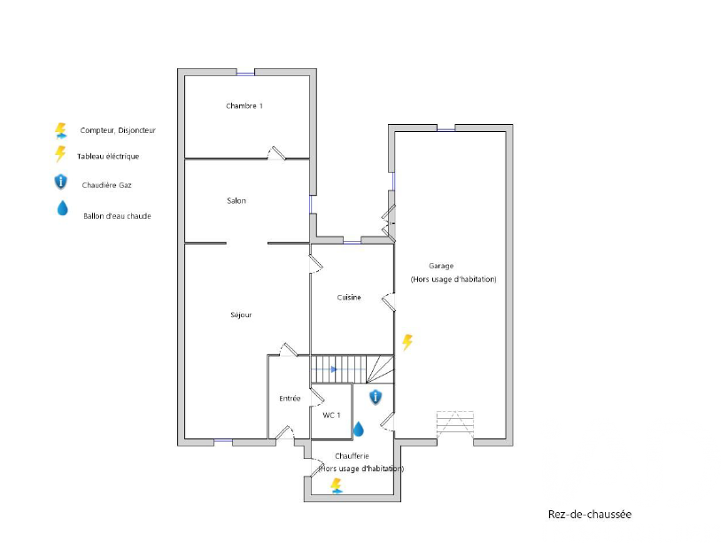
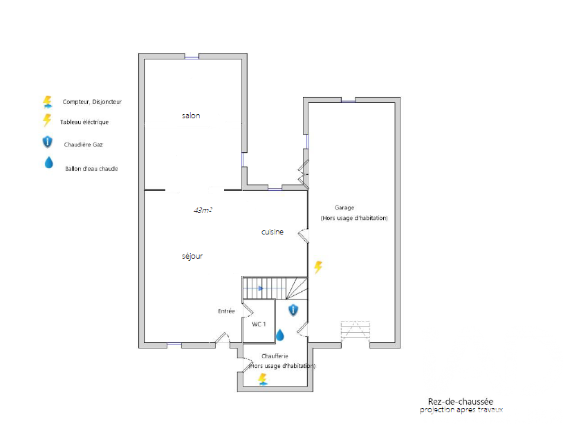
Iad France - Adeline Gueniot vous propose : Maison mitoyenne d’un côté située à Sainte-Savine, dans un quartier calme et proche des commodités. Construite en 1955, cette maison est à rénover entièrement et offre un fort potentiel d’aménagement. Au rez-de-chaussée, vous trouverez une entrée, un wc, une cuisine, un salon et une chambre. Il est possible d’ouvrir la chambre afin de créer un bel espace de vie d’environ 43 m² avec cuisine ouverte. À l’étage, trois chambres ainsi qu’une salle d’eau. À l’arrière, un terrain de 114 m² permet de profiter d’un extérieur agréable. Un garage de 28 m² vient compléter le bien. La chaudière à condensation et le cumulus sont récents. Certaines fenêtres sont à changer TF 1169€ Un projet idéal pour les amateurs de rénovation souhaitant créer une maison à leur image. Restant à votre disposition Adeline Honoraires d'agence à la charge du vendeur. Information d'affichage énergétique sur ce bien : classe ENERGIE E indice 323 et classe CLIMAT E indice 62. Les informations sur les risques auxquels ce bien est exposé, y compris l'obligation légale de débroussaillement, sont disponibles sur le site Géorisques : http://www.georisques.gouv.fr. La présente annonce immobilière a été rédigée sous la responsabilité éditoriale de Mme Adeline Gueniot mandataire indépendant en immobilier (sans détention de fonds), agent commercial de la SAS I@D France immatriculé au RSAC de TROYES sous le numéro 823462965, titulaire de la carte de démarchage immobilier pour le compte de la société I@D France SAS.
À proximité
Recherche des commodités à proximité...
Détails de l'annonce
Localisation
Ville
Sainte-Savine
Pays
FR
Diagnostics / Énergie
Diagnostic DPE
323
Diagnostic GES
62
Surfaces / Pièces / Composition
Nombre d’étages
2
Chauffage et diagnostics
Diagnostic de performance énergétique (DPE)
a
b
c
d
e
f
g
Indice d'émission de gaz à effet de serre (GES)
a
b
c
d
e
f
g
