Type
Bien immobilierTarif
189 000 €Chambres
0Salles de bain
0Vente Maison de campagne 5 pièces
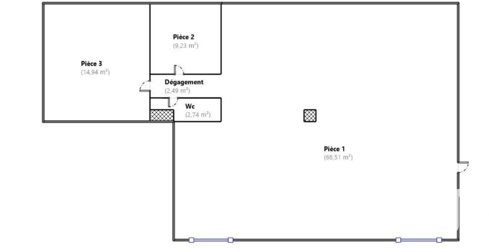
Iad France - Emmanuel Janot vous propose : Les Moutiers - Hubert Magnifique Maison de Campagne proche de Livarot (15 mn de l’ A28 et 10 mn de Vimoutiers) Espace et Tranquillité Assurés : Découvrez cette charmante maison de campagne située proche de Livarot, offrant un cadre de vie idyllique et paisible au cOEur de la nature. Construite en 1850, cette maison de caractère bénéficie d'une surface habitable de 115 m², le tout posé sur un vaste terrain de 2700 m². L'architecture typique et l'authenticité de cette maison sauront vous séduire dès le premier regard. Avec un seule étage et un grenier aménageable, cette propriété propose 5 pièces offrant de multiples possibilités d'aménagement à votre convenance. Que ce soit pour une grande famille, un projet de colocation ou même une activité de chambres d'hôtes, cette maison saura s'adapter à vos besoins. À l'intérieur, vous trouverez des espaces lumineux et agréables, prêts à être personnalisés selon vos goûts et vos envies. La maison nécessite peu de travaux grâce à son bon état général, préservant ainsi tout le cachet de l'ancien tout en offrant un confort moderne. ( Fibre, double vitrage, cheminée, volet électrique, cuisine aménagée et équipée, sanitaire neuf, exposition sud) À l'extérieur, pas moins de 2700 m² de terrain s'offrent à vous, avec de multiples possibilités d'aménagement : potager, verger, terrasse, espace détente. Laissez libre cours à votre imagination pour créer un véritable havre de paix. Enfin, cette maison de campagne est idéalement située pour les amoureux de la nature, offrant calme et sérénité tout en restant proche des commodités de Livarot. Une occasion unique de vivre en harmonie avec la nature dans un cadre préservé. N'hésitez plus, cette maison de campagne est un véritable petit coin de paradis. Contactez-moi dès maintenant pour organiser une visite et laissez-vous charmer par le potentiel de ce bien exceptionnel. Honoraires d'agence à la charge du vendeur. Information d'affichage énergétique sur ce bien : classe ENERGIE E indice 307 et classe CLIMAT E indice 65. Les informations sur les risques auxquels ce bien est exposé, y compris l'obligation légale de débroussaillement, sont disponibles sur le site Géorisques : http://www.georisques.gouv.fr. La présente annonce immobilière a été rédigée sous la responsabilité éditoriale de M Emmanuel Janot mandataire indépendant en immobilier (sans détention de fonds), agent commercial de la SAS I@D France immatriculé au RSAC de LISIEUX sous le numéro 409249661, titulaire de la carte de démarchage immobilier pour le compte de la société I@D France SAS.
À proximité
Recherche des commodités à proximité...
Détails de l'annonce
Localisation
Ville
Livarot
Pays
FR
Diagnostics / Énergie
Diagnostic DPE
307
Diagnostic GES
65
Surfaces / Pièces / Composition
Nombre d’étages
Chauffage et diagnostics
Diagnostic de performance énergétique (DPE)
a
b
c
d
e
f
g
Indice d'émission de gaz à effet de serre (GES)
a
b
c
d
e
f
g
