Type
Bien immobilierTarif
197 500 €Chambres
2Salles de bain
0Vente Appartement 3 pièces
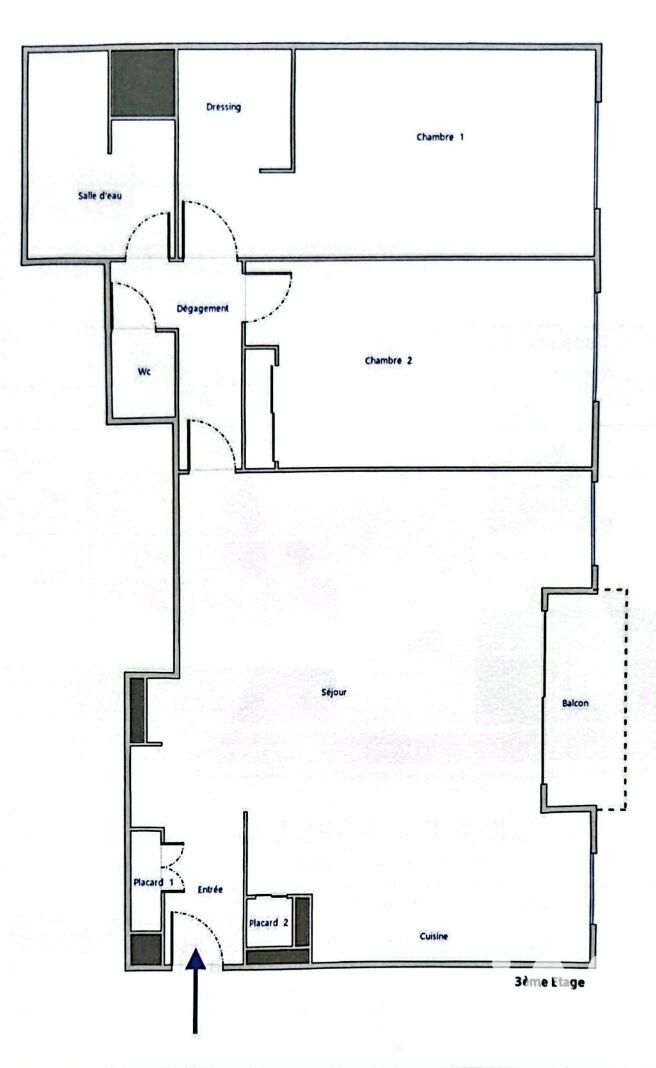
Iad France - Marie Leplat vous propose : À vendre – Appartement lumineux F3 avec balcon sans vis-à-vis, cave et place de parking en sous-sol. Situé au 3ème étage sans ascenseur d’une résidence calme et bien entretenue, cet appartement de type F3 offre un cadre de vie agréable au sein d'un environnement verdoyant. La résidence est sécurisée avec interphone et des gardiens régulièrement présents, assurant tranquillité et surveillance au quotidien. Il se compose d'une entrée, d'une cuisine ouverte équipée d'un plan de travail à double niveau de 2 mètres et ouverte sur un séjour lumineux avec bureau donnant accès à un balcon sans vis-à-vis, d'une salle d'eau équipée d'un lavabo et d'une douche, ainsi que de toilettes séparées. Actuellement aménagé avec deux chambres dont une avec tête de lit personnalisée, possibilité de réaménager facilement la troisième chambre grâce à une séparation. Une cave complète ce bien ainsi qu'une place de parking en sous-sol avec vidéosurveillance. La résidence propose plusieurs pataugeoires, des espaces de jeux pour enfants, des terrains de tennis, ainsi que de vastes espaces verts de 27 hectares idéals pour promener ses animaux de compagnie. Proche des commerces, des transports, du centre hospitalier, ainsi que des écoles maternelles et élémentaires. Opportunité à saisir ! Pour plus de renseignements ou une visite, contactez-moi. MARIE LEPLAT La presente annonce immobiliere vise 3 lots situés dans une copropriété de 408 lots au total et ne faisant l'objet d'aucune procédure en cours citée à l'article L. 721-1 du code de la construction et de l'habitation. Montant moyen mensuel de charges déclaré par le vendeur : 485.67€ par mois (soit 5828.04 € annuel). Honoraires d'agence à la charge du vendeur. Information d'affichage énergétique sur ce bien : classe ENERGIE E indice 266 et classe CLIMAT E indice 58. Les informations sur les risques auxquels ce bien est exposé, y compris l'obligation légale de débroussaillement, sont disponibles sur le site Géorisques : http://www.georisques.gouv.fr. La présente annonce immobilière a été rédigée sous la responsabilité éditoriale de Mme Marie Leplat mandataire indépendant en immobilier (sans détention de fonds), agent commercial de la SAS I@D France immatriculé au RSAC de Versailles sous le numéro 924610025, titulaire de la carte de démarchage immobilier pour le compte de la société I@D France SAS.
À proximité
Recherche des commodités à proximité...
Détails de l'annonce
Localisation
Ville
Marly-le-Roi
Pays
FR
Diagnostics / Énergie
Diagnostic DPE
266
Diagnostic GES
58
Surfaces / Pièces / Composition
Nombre d’étages
4
Étage
3
Chauffage et diagnostics
Diagnostic de performance énergétique (DPE)
a
b
c
d
e
f
g
Indice d'émission de gaz à effet de serre (GES)
a
b
c
d
e
f
g
