Type
Bien immobilierTarif
69 000 €Chambres
2Salles de bain
0Vente Appartement 4 pièces
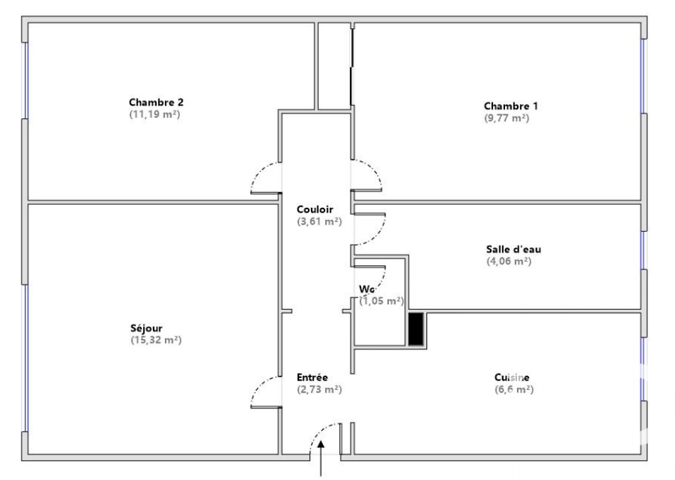
Iad France - Sylvie Clement vous propose : Installé au premier étage d’une résidence bien entretenue, dans un environnement calme et sécurisé, ce T4 de 54 m² offre un cadre de vie agréable, rassurant et parfaitement adapté à une vie de famille ou à un premier achat. Il se compose d’une entrée, d’un séjour lumineux, d’une cuisine aménagée, d’une salle d’eau ainsi que de toilettes séparés. Il offre également deux chambres, dont une avec placard intégré. Une cave privative, complète ce bien. L’appartement dispose de fenêtres en PVC double vitrage offrant une bonne isolation thermique et phonique. Le chauffage collectif au gaz, équipé de répartiteurs, ainsi que l’eau sont inclus dans les charges de copropriété, ce qui permet une gestion sereine du budget Situé à proximité des commodités, cet appartement bénéficie d’un emplacement idéal pour faciliter votre quotidien. Vous aurez également accès à une place de parking, non privative, permettant de stationner facilement. Contactez-moi dès maintenant pour organiser une visite. La presente annonce immobiliere vise 2 lots situés dans une copropriété de 201 lots au total et ne faisant l'objet d'aucune procédure en cours citée à l'article L. 721-1 du code de la construction et de l'habitation. Montant moyen mensuel de charges déclaré par le vendeur : 173.17€ par mois (soit 2078 € annuel). Honoraires d'agence à la charge du vendeur. Information d'affichage énergétique sur ce bien : classe ENERGIE D indice 249 et classe CLIMAT D indice 43. Les informations sur les risques auxquels ce bien est exposé, y compris l'obligation légale de débroussaillement, sont disponibles sur le site Géorisques : http://www.georisques.gouv.fr. La présente annonce immobilière a été rédigée sous la responsabilité éditoriale de Mme Sylvie Clement mandataire indépendant en immobilier (sans détention de fonds), agent commercial de la SAS I@D France immatriculé au RSAC de CHÂLONS-EN-CHAMPAGNE sous le numéro 894026251, titulaire de la carte de démarchage immobilier pour le compte de la société I@D France SAS.
À proximité
Recherche des commodités à proximité...
Détails de l'annonce
Localisation
Ville
Châlons-en-Champagne
Pays
FR
Diagnostics / Énergie
Diagnostic DPE
249
Diagnostic GES
43
Surfaces / Pièces / Composition
Nombre d’étages
5
Chauffage et diagnostics
Diagnostic de performance énergétique (DPE)
a
b
c
d
e
f
g
Indice d'émission de gaz à effet de serre (GES)
a
b
c
d
e
f
g
