Type
Bien immobilierTarif
119 900 €Chambres
1Salles de bain
0Vente Appartement 2 pièces
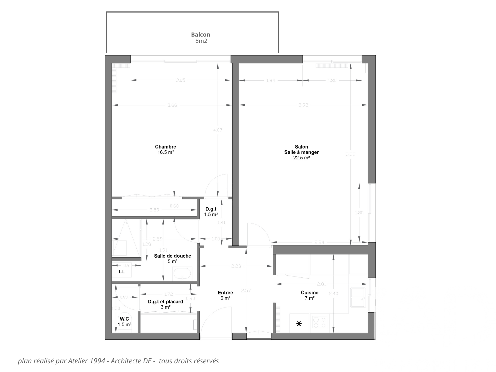
Iad France - Lison Mauchant vous propose : EXCLUSIVITÉ – Appartement 61 m² avec BALCON et PARKING à Mont-Saint-Aignan, limite Rouen Situé dans le quartier Saint-Gervais, au CALME et en rdc surélevé d’une résidence arborée, découvrez cet appartement modulable selon vos projets (habitation / usage pro) Agencement de l’appartement - Entrée spacieuse avec placard et WC indépendant - Salle d’eau avec douche - Chambre de 16 m² avec placard intégré et accès direct au balcon de 8 m² - Salon / salle à manger double exposition de 22 m² - Cuisine Possibilité de faire 2 chambres en installant une cloison. Atouts et confort - Balcon ouvert sur le parc de la résidence - Parking privatif en sous-sol + parking visiteurs - Grande cave - Charges tout inclus 290€ / mois (électricité, chauffage, eau chaude / froide, entretien des communs) Environnement - Transports : arrêt de bus à 8 minutes à pied - Commerces de proximité : boulangerie à 500 m, zone commerciale Carrefour La Vatine à 7 min en voiture - Espaces sportifs : tennis à 100 m, piscine à 1,5 km - Forêt accessible à 1 km seulement ! Un appartement polyvalent pour vos projets ! Que vous souhaitiez un grand T2 confortable ou un espace professionnel * adapté à votre activité, venez découvrir cet appartement dès maintenant. * Local commercial pour profession non nuisible autorisé par le règlement de copropriété, il y a un parking visiteur devant la résidence et des stationnements gratuits dans la rue. Contactez-moi dès aujourd’hui pour organiser une visite ! * La presente annonce immobiliere vise 1 lot situé dans une copropriété de 38 lots au total et ne faisant l'objet d'aucune procédure en cours citée à l'article L. 721-1 du code de la construction et de l'habitation. Montant moyen mensuel de charges déclaré par le vendeur : 293.33€ par mois (soit 3520 € annuel). Honoraires d'agence à la charge du vendeur. Information d'affichage énergétique sur ce bien : classe ENERGIE F indice 348 et classe CLIMAT F indice 76. Les informations sur les risques auxquels ce bien est exposé, y compris l'obligation légale de débroussaillement, sont disponibles sur le site Géorisques : http://www.georisques.gouv.fr. La présente annonce immobilière a été rédigée sous la responsabilité éditoriale de Mme Lison Mauchant mandataire indépendant en immobilier (sans détention de fonds), agent commercial de la SAS I@D France immatriculé au RSAC de Rouen sous le numéro 943148817, titulaire de la carte de démarchage immobilier pour le compte de la société I@D France SAS.
À proximité
Recherche des commodités à proximité...
Détails de l'annonce
Localisation
Ville
Mont-Saint-Aignan
Pays
FR
Diagnostics / Énergie
Diagnostic DPE
348
Diagnostic GES
76
Surfaces / Pièces / Composition
Nombre d’étages
4
Chauffage et diagnostics
Diagnostic de performance énergétique (DPE)
a
b
c
d
e
f
g
Indice d'émission de gaz à effet de serre (GES)
a
b
c
d
e
f
g
