Type
Bien immobilierTarif
655 000 €Chambres
7Salles de bain
0Vente Maison/villa 7 pièces
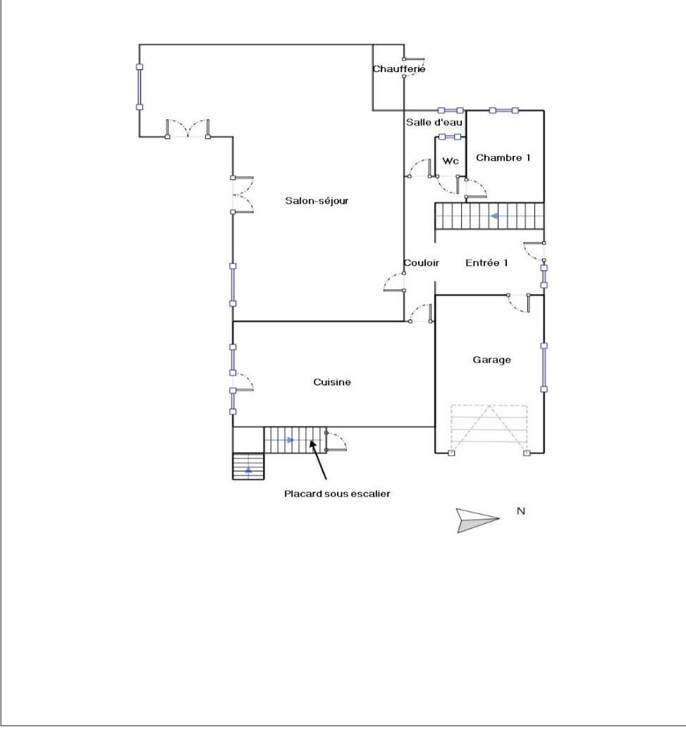
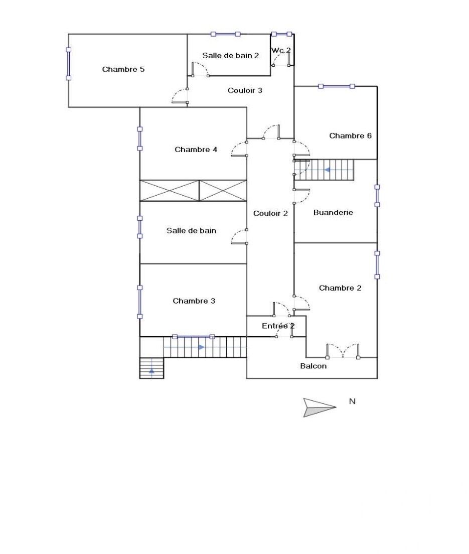
Iad France - Sonia Di Liddo vous propose : PAU – TRESPOEY Adresse iconique – Demeure de caractère au cOEur du quartier le plus prisé Dans la plus belle rue de Pau, au cOEur du très recherché quartier de Trespoey, se dévoile une demeure rare, confidentielle, où l’élégance intemporelle rencontre l’art de vivre palois. Développant 230 m² habitables, cette propriété séduit immédiatement par ses volumes spectaculaires, sa hauteur sous plafond remarquable et la noblesse de ses espaces, baignés de lumière. Chaque pièce révèle une atmosphère raffinée, pensée pour une vie familiale confortable comme pour de beaux moments de réception. Une architecture généreuse et maîtrisée La maison s’organise sur un niveau principal et un étage, offrant une circulation fluide et équilibrée : Six chambres, aux proportions harmonieuses Une cuisine indépendante, propice aux instants de partage Trois salles de bains Deux WC Les plans sont intégrés à l’annonce afin d’apprécier pleinement la distribution et le potentiel des espaces. Un jardin d’exception en cOEur de ville Édifiée sur une parcelle de 745 m², la propriété bénéficie d’un très vaste jardin, véritable havre de paix, rare dans ce secteur d’exception. Confort, performance et sérénité Chauffage individuel au gaz Chaudière récente, entretenue avec soin Diagnostic énergétique classé D, gage de la qualité des équipements Honoraires d'agence à la charge du vendeur. Information d'affichage énergétique sur ce bien : classe ENERGIE D indice 43 et classe CLIMAT D indice 43. Les informations sur les risques auxquels ce bien est exposé, y compris l'obligation légale de débroussaillement, sont disponibles sur le site Géorisques : http://www.georisques.gouv.fr. La présente annonce immobilière a été rédigée sous la responsabilité éditoriale de Mme Sonia Di Liddo mandataire indépendant en immobilier (sans détention de fonds), agent commercial de la SAS I@D France immatriculé au RSAC de Pau sous le numéro 833712789, titulaire de la carte de démarchage immobilier pour le compte de la société I@D France SAS.
Cette semaine
Cette annonce est récente
À proximité
Recherche des commodités à proximité...
Détails de l'annonce
Localisation
Ville
Pau
Pays
FR
Diagnostics / Énergie
Diagnostic DPE
43
Diagnostic GES
43
Chauffage et diagnostics
Diagnostic de performance énergétique (DPE)
a
b
c
d
e
f
g
Indice d'émission de gaz à effet de serre (GES)
a
b
c
d
e
f
g
