Type
Bien immobilierTarif
325 000 €Chambres
5Salles de bain
0Vente Maison/villa 5 pièces
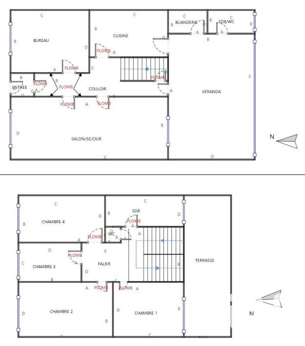
Iad France - Mélanie Baudin vous propose : Dans le village de Richebourg (école, boulangerie sur place et accès N12 rapide), voici un pavillon, 5 pièces, 4 chambres avec sous-sol total, d'une surface habitable de 117 m². Le tout sur terrain constructible de 1500 m². Il se compose comme suit : * Entrée, séjour avec poêle à bois et balcon, cuisine séparée. Un couloir distribue ensuite 3 chambres, une salle de bain et wc. * Au sous sol : Grande pièce / Chambre avec fenêtre, isolée et chauffée, une salle de bain et wc sanibroyeur. Une buanderie, un espace garage pour voiture, une chaufferie et une autre pièce. Honoraires d'agence à la charge du vendeur. Information d'affichage énergétique sur ce bien : classe ENERGIE D indice 222 et classe CLIMAT D indice 42. Les informations sur les risques auxquels ce bien est exposé, y compris l'obligation légale de débroussaillement, sont disponibles sur le site Géorisques : http://www.georisques.gouv.fr. La présente annonce immobilière a été rédigée sous la responsabilité éditoriale de Mme Mélanie Baudin mandataire indépendant en immobilier (sans détention de fonds), agent commercial de la SAS I@D France immatriculé au RSAC de VERSAILLES sous le numéro 752285288, titulaire de la carte de démarchage immobilier pour le compte de la société I@D France SAS.
Ce mois
Cette annonce est récente
À proximité
Recherche des commodités à proximité...
Détails de l'annonce
Localisation
Ville
Richebourg
Pays
FR
Diagnostics / Énergie
Diagnostic DPE
222
Diagnostic GES
42
Surfaces / Pièces / Composition
Nombre d’étages
Chauffage et diagnostics
Diagnostic de performance énergétique (DPE)
a
b
c
d
e
f
g
Indice d'émission de gaz à effet de serre (GES)
a
b
c
d
e
f
g
