Type
Bien immobilierTarif
185 000 €Chambres
2Salles de bain
0Vente Appartement 3 pièces
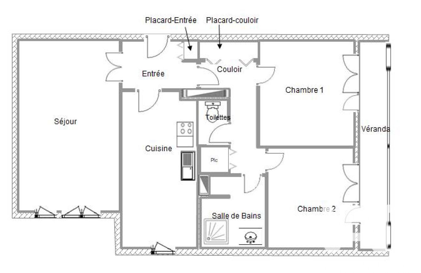
Iad France - Henri Dupin vous propose : * Encore quelques disponibilités de visites dimanche 1 février dans l'après-midi. Contactez moi rapidement pour prendre rendez-vous * Appartement 3 pièces de 66 m² à Créteil, situé à 800 mètres de la station Pointe du Lac (Métro ligne 8 et télécabine C1). Ce bien au 6ème étage avec ascenseur comprend un séjour de 18 m², une cuisine équipée séparée et deux chambres. Le logement dispose d'une loggia fermée de 6,51 m² et d'une cave de 7 m². La performance énergétique est classée C grâce à une rénovation récente et un chauffage collectif au gaz. Commerces et écoles sont accessibles à pied. - Performance énergétique : Classement DPE en C (146 kWhEP / m². an) suite à la rénovation énergétique de la copropriété. - Transports : Proximité immédiate du métro ligne 8 et du Câble C1 Pointe du Lac à 800m. - Surfaces annexes : Présence d'une loggia fermée de 6,51 m² et d'une cave privative de 7,12 m². - Grande cuisine : Cuisine dinatoire de plus de 12 m². - Sécurité et confort : Résidence avec gardien, ascenseur, digicode, interphone et accès à la fibre optique. - Commodités : Écoles (260m), collège (500m) et supermarché (800m) accessibles rapidement à pied. * La présente annonce est soumise à la vente Interactive. Prix de première offre possible : 185000 € Le vendeur peut contresigner en ligne et à tout moment, toute offre d'achat dont le prix et les conditions lui conviennent. Il n'est contraint par aucune offre d'achat, quel que soit le montant de celle-ci. * ConsOEurs, confrères d’agences et autres professionnels, je suis ouvert à toutes collaborations et partage inter-agence dans l’intérêt de nos clients. N’hésitez pas à me contacter ! * La presente annonce immobiliere vise 2 lots situés dans une copropriété de 385 lots au total et ne faisant l'objet d'aucune procédure en cours citée à l'article L. 721-1 du code de la construction et de l'habitation. Montant moyen mensuel de charges déclaré par le vendeur : 269.33€ par mois (soit 3232 € annuel). Honoraires d'agence à la charge du vendeur. Information d'affichage énergétique sur ce bien : classe ENERGIE C indice 146 et classe CLIMAT B indice 9. Les informations sur les risques auxquels ce bien est exposé, y compris l'obligation légale de débroussaillement, sont disponibles sur le site Géorisques : http://www.georisques.gouv.fr. La présente annonce immobilière a été rédigée sous la responsabilité éditoriale de M Henri Dupin mandataire indépendant en immobilier (sans détention de fonds), agent commercial de la SAS I@D France immatriculé au RSAC de CRETEIL sous le numéro 418169611, titulaire de la carte de démarchage immobilier pour le compte de la société I@D France SAS.
Cette semaine
Cette annonce est récente
À proximité
Recherche des commodités à proximité...
Détails de l'annonce
Localisation
Ville
Créteil
Pays
FR
Diagnostics / Énergie
Diagnostic DPE
146
Diagnostic GES
9
Surfaces / Pièces / Composition
Nombre d’étages
7
Étage
6
Chauffage et diagnostics
Diagnostic de performance énergétique (DPE)
a
b
c
d
e
f
g
Indice d'émission de gaz à effet de serre (GES)
a
b
c
d
e
f
g
