Vente Appartement 3 pièces
Type
Bien immobilierTarif
179 000 €Chambres
0Salles de bain
0Vente Appartement 3 pièces
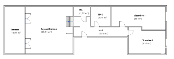
Iad France - Cécile Normand vous propose : PLAN D'AUPS SAINTE BAUME - Appartement T3 de 55 m² avec terrasse de 11 m². Situé sur la commune du Plan d’Aups, cet appartement lumineux et traversant offre un cadre de vie agréable, dans un environnement calme tout en étant au cOEur du village à proximité des commodités. Au 2ème et dernier étage, il se compose d'une belle pièce de vie avec cuisine équipée ouverte sur le séjour, donnant accès à une terrasse de 11 m² avec vue dégagée, de deux chambres, d'une salle d’eau, d'un WC indépendant et de nombreux rangements. Une place de stationnement privative vient compléter ce bien. Pas de travaux à prévoir Vidéo sur demande. Disponible 7 jours sur 7 pour tout complément d'information et visite. La presente annonce immobiliere vise 2 lots situés dans une copropriété de 46 lots au total et ne faisant l'objet d'aucune procédure en cours citée à l'article L. 721-1 du code de la construction et de l'habitation. Montant moyen mensuel de charges déclaré par le vendeur : 105€ par mois (soit 1260 € annuel). Honoraires d'agence à la charge du vendeur. Information d'affichage énergétique sur ce bien : classe ENERGIE C indice 177 et classe CLIMAT A indice 5. Les informations sur les risques auxquels ce bien est exposé, y compris l'obligation légale de débroussaillement, sont disponibles sur le site Géorisques : http://www.georisques.gouv.fr. La présente annonce immobilière a été rédigée sous la responsabilité éditoriale de Mme Cécile Normand mandataire indépendant en immobilier (sans détention de fonds), agent commercial de la SAS I@D France immatriculé au RSAC de draguignan sous le numéro 918147547, titulaire de la carte de démarchage immobilier pour le compte de la société I@D France SAS.
Détails de l'annonce
Localisation
Ville
Plan-d'Aups-Sainte-Baume
Pays
FR
Diagnostics / Énergie
Diagnostic DPE
177
Diagnostic GES
5
Surfaces / Pièces / Composition
Nombre d’étages
Étage
2
Chauffage et diagnostics
Diagnostic de performance énergétique (DPE)
a
b
c
d
e
f
g
Indice d'émission de gaz à effet de serre (GES)
a
b
c
d
e
f
g
