Trouver...

Language: FR

Devise: EUR

Vente Appartement 2 pièces

Publié le 13 March 2026
Type
Bien immobilier
Tarif
395 000 €
Chambres
1
Salles de bain
0

Vente Appartement 2 pièces

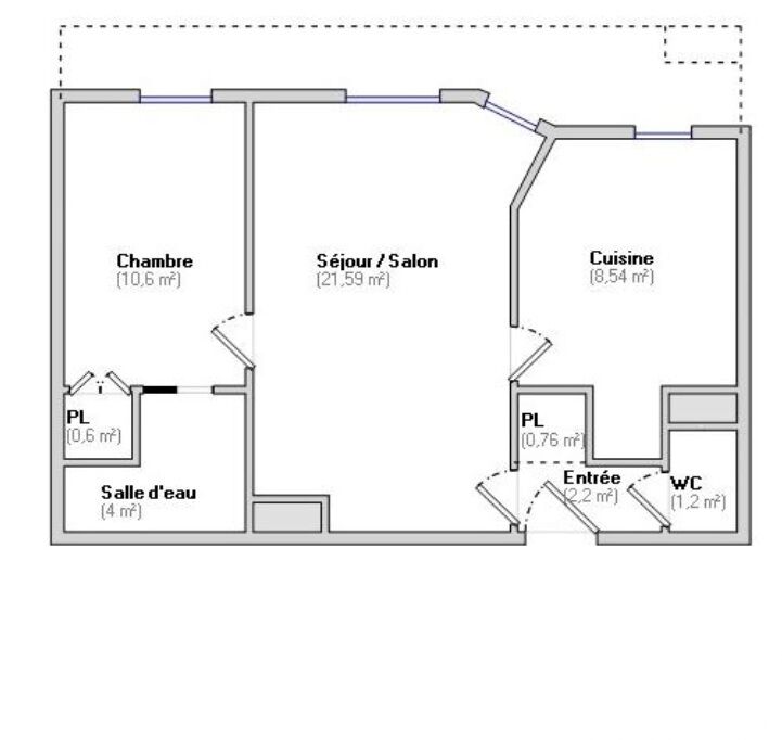
Iad France - Ludivine Ferrari vous propose : À VENDRE - APPARTEMENT T2 49 m² au rez-de-chaussée d'une résidence recherchée à Courbevoie, quartier BECON LES BRUYERES Venez visiter cet appartement de 49 m² entièrement rénové en 2025 qui offre des prestations de qualité pour un confort de vie optimal. L'espace de vie se compose d'un salon, d'une cuisine semi-ouverte équipée, d'une chambre confortable, d'une salle d'eau avec douche, et d'un WC séparé. Profitez également d'une terrasse de 8 m², d'une cave et d'un box en sous-sol. Les + : - chauffage et eau chaude collectifs avec compteurs individuels - Gare Ligne L - Bécon les Bruyères à 8 minutes à pieds - Parc de Bécon à 500 M - Commerces de proximité, restaurants, cinéma et théâtre à moins de 5 minutes à pieds La presente annonce immobiliere vise 5 lots situés dans une copropriété de 58 lots au total et ne faisant l'objet d'aucune procédure en cours citée à l'article L. 721-1 du code de la construction et de l'habitation. Montant moyen mensuel de charges déclaré par le vendeur : 200€ par mois (soit 2400 € annuel). Honoraires d'agence à la charge du vendeur. Information d'affichage énergétique sur ce bien : classe ENERGIE C indice 126 et classe CLIMAT C indice 22. Les informations sur les risques auxquels ce bien est exposé, y compris l'obligation légale de débroussaillement, sont disponibles sur le site Géorisques : http://www.georisques.gouv.fr. La présente annonce immobilière a été rédigée sous la responsabilité éditoriale de Mme Ludivine Ferrari mandataire indépendant en immobilier (sans détention de fonds), agent commercial de la SAS I@D France immatriculé au RSAC de NANTERRE sous le numéro 535031371, titulaire de la carte de démarchage immobilier pour le compte de la société I@D France SAS.
Cette semaine Cette annonce est récente

À proximité

Recherche des commodités à proximité...

Détails de l'annonce

Localisation

Ville
Courbevoie
Pays
FR

Diagnostics / Énergie

Diagnostic DPE
126
Diagnostic GES
22

Surfaces / Pièces / Composition

Nombre d’étages
6

Chauffage et diagnostics

Diagnostic de performance énergétique (DPE)
a
b
c
d
e
f
g
Indice d'émission de gaz à effet de serre (GES)
a
b
c
d
e
f
g
Rappelez-moi