Vente Maison/villa 6 pièces
Type
Bien immobilierTarif
371 000 €Chambres
4Salles de bain
0Vente Maison/villa 6 pièces
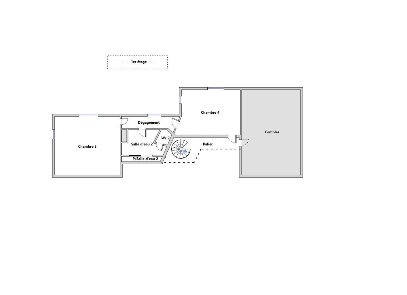
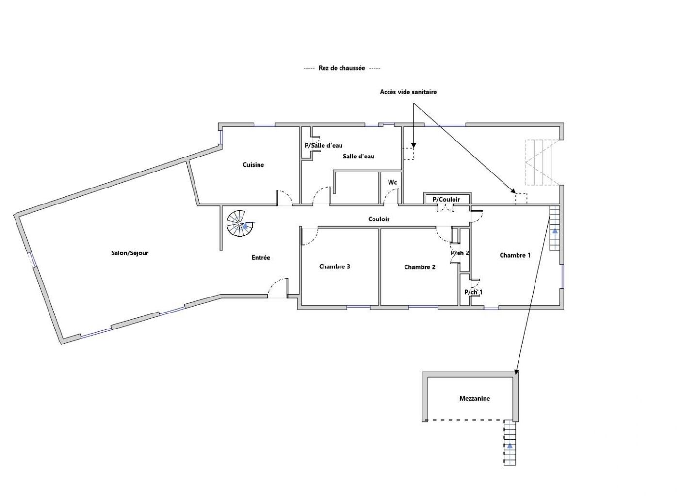
Iad France - Laetitia Rodriguez vous propose : Maison familiale 150 m² – Quartier Castanet, Nîmes Située dans une impasse au calme, à proximité des écoles et des commerces, cette maison familiale d’environ 150 m² est édifiée sur un terrain de plus de 1 300 m². Elle se compose au rez-de-chaussée d’une entrée, d’un séjour lumineux, d’une cuisine indépendante, d’une salle d’eau, de trois chambres, d’un WC séparé et d’un accès direct au garage. À l’étage, un espace parental offre une chambre, un bureau et une salle d’eau privative. Les menuiseries du rez-de-chaussée ont moins de dix ans. La maison est équipée de volets roulants solaires et d’une climatisation dans le salon. Des travaux de rénovation sont à prévoir, notamment concernant le système de chauffage et l’électricité. Maison idéale pour une famille souhaitant vivre dans un environnement paisible tout en restant proche des services et écoles du quartier Castanet. Je me tiens à votre disposition pour tout complément d’information et pour organiser une visite. Honoraires d'agence à la charge du vendeur. Information d'affichage énergétique sur ce bien : classe ENERGIE D indice 218 et classe CLIMAT B indice 7. Les informations sur les risques auxquels ce bien est exposé, y compris l'obligation légale de débroussaillement, sont disponibles sur le site Géorisques : http://www.georisques.gouv.fr. La présente annonce immobilière a été rédigée sous la responsabilité éditoriale de Mme Laetitia Rodriguez mandataire indépendant en immobilier (sans détention de fonds), agent commercial de la SAS I@D France immatriculé au RSAC de Montpellier sous le numéro 851239954, titulaire de la carte de démarchage immobilier pour le compte de la société I@D France SAS.
Détails de l'annonce
Localisation
Ville
Nîmes
Pays
FR
Diagnostics / Énergie
Diagnostic DPE
218
Diagnostic GES
7
Surfaces / Pièces / Composition
Nombre d’étages
2
Chauffage et diagnostics
Diagnostic de performance énergétique (DPE)
a
b
c
d
e
f
g
Indice d'émission de gaz à effet de serre (GES)
a
b
c
d
e
f
g
