Type
Bien immobilierTarif
238 000 €Chambres
3Salles de bain
0Vente Maison traditionnelle 4 pièces
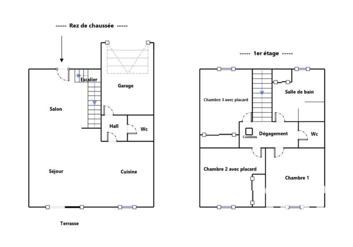
Iad France - Manon DARRAS vous propose : SIGEAN - MAISON 3 FACES DE 100 m² environ - 3 CHAMBRES - GARAGE - JARDIN - TERRASSE Située à SIGEAN, village proche des plages et présentant toutes les commodités, cette maison d'une superficie habitable de 100 m² est composée au rez-de-chaussée d'une grande pièce de vie lumineuse donnant accès au jardin, d'une cuisine équipée et aménagée ouverte sur le séjour, d'un WC indépendant avec lave-main et d'un garage. À l'étage, 3 chambres dont 2 avec placards, une salle de bain avec douche et baignoire, un WC indépendant. Maison 3 faces, climatisée au rez-de-chaussée et à l'étage, adoucisseur d'eau, double vitrage, volets bois et électriques. Une maison familiale, à personnaliser. ou pas ! Honoraires d'agence à la charge du vendeur. Information d'affichage énergétique sur ce bien : classe ENERGIE B indice 96 et classe CLIMAT A indice 2. Les informations sur les risques auxquels ce bien est exposé, y compris l'obligation légale de débroussaillement, sont disponibles sur le site Géorisques : http://www.georisques.gouv.fr. La présente annonce immobilière a été rédigée sous la responsabilité éditoriale de Mme Manon DARRAS mandataire indépendant en immobilier (sans détention de fonds), agent commercial de la SAS I@D France immatriculé au RSAC de NARBONNE sous le numéro 889854345, titulaire de la carte de démarchage immobilier pour le compte de la société I@D France SAS.
À proximité
Recherche des commodités à proximité...
Détails de l'annonce
Localisation
Ville
Sigean
Pays
FR
Diagnostics / Énergie
Diagnostic DPE
96
Diagnostic GES
2
Surfaces / Pièces / Composition
Nombre d’étages
2
Chauffage et diagnostics
Diagnostic de performance énergétique (DPE)
a
b
c
d
e
f
g
Indice d'émission de gaz à effet de serre (GES)
a
b
c
d
e
f
g
