Trouver...

Language: FR

Devise: EUR

Vente Maison/villa 6 pièces

Publié le 18 January 2026
Type
Bien immobilier
Tarif
158 500 €
Chambres
4
Salles de bain
0

Vente Maison/villa 6 pièces

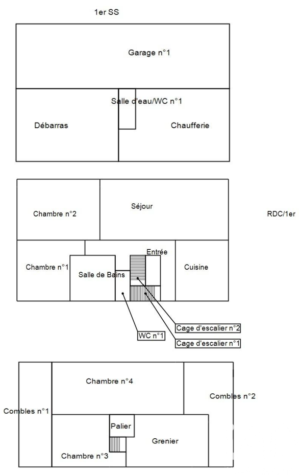
Iad France - Nelly Maupin vous propose : À saisir, maison à CIVAUX située dans un environnement calme, à seulement quelques minutes du centre-bourg de Civaux, cette maison des années 70 offre un fort potentiel grâce à ses beaux volumes, son vaste terrain et ses nombreuses dépendances. La maison développe une surface habitable d’environ 136 m² avec 4 chambres et est implantée sur une parcelle entièrement close de 4 094 m². L’habitation se compose au rez-de-chaussée d’une entrée desservant un couloir, une cuisine d’environ 13 m², un salon-séjour de 28 m², deux chambres de 9 m² et 15 m², une salle de bains ainsi qu’un WC indépendant. À l’étage, vous trouverez deux chambres supplémentaires de 11 m² et 23 m², ainsi qu’un grenier d’environ 20 m² au sol, offrant un espace de rangement ou d’aménagement complémentaire. La maison dispose d’un sous-sol complet comprenant une chaufferie, un grand garage de 49 m², ainsi qu’une pièce avec point d’eau, douche et WC, pouvant être aménagé en studio indépendant ou espace professionnel. Les menuiseries ont été remplacées par du double vitrage PVC il y a une dizaine d'années. La maison est raccordée au tout-à-l’égout, à l’exception d’un point d’eau restant à raccorder. Le chauffage est assuré par une chaudière fioul à condensation installée en 2010. Point fort ! Un grand double garage mitoyen sur deux niveaux d’environ 83 m² chacun, soit plus de 160 m², offrant de nombreuses possibilités de stockage, d’atelier ou de stationnement de véhicules. La couverture de ce bâtiment est en fibrociment amianté, tandis que la maison principale est couverte en tuiles. À l’extérieur, le terrain plat et clos accueille également un bassin et laisse place à divers projets d’aménagement. Cette maison en pierre, à terminer de rénover, séduira par son potentiel, ses volumes et ses dépendances rares sur le secteur. Travaux à prévoir : une remise en conformité de l'électricité et amélioration de l'isolation. Pour plus de renseignements ou pour organiser une visite, merci de me contacter par téléphone. Honoraires d'agence à la charge du vendeur. Information d'affichage énergétique sur ce bien : classe ENERGIE G indice 372 et classe CLIMAT G indice 116. Les informations sur les risques auxquels ce bien est exposé, y compris l'obligation légale de débroussaillement, sont disponibles sur le site Géorisques : http://www.georisques.gouv.fr. La présente annonce immobilière a été rédigée sous la responsabilité éditoriale de Mme Nelly Maupin mandataire indépendant en immobilier (sans détention de fonds), agent commercial de la SAS I@D France immatriculé au RSAC de POITIERS sous le numéro 901199471, titulaire de la carte de démarchage immobilier pour le compte de la société I@D France SAS.
Ce mois Cette annonce est récente

À proximité

Recherche des commodités à proximité...

Détails de l'annonce

Localisation

Ville
Civaux
Pays
FR

Diagnostics / Énergie

Diagnostic DPE
372
Diagnostic GES
116

Surfaces / Pièces / Composition

Nombre d’étages
3

Chauffage et diagnostics

Diagnostic de performance énergétique (DPE)
a
b
c
d
e
f
g
Indice d'émission de gaz à effet de serre (GES)
a
b
c
d
e
f
g
Rappelez-moi