Type
Bien immobilierTarif
590 000 €Chambres
4Salles de bain
0Vente Appartement 5 pièces
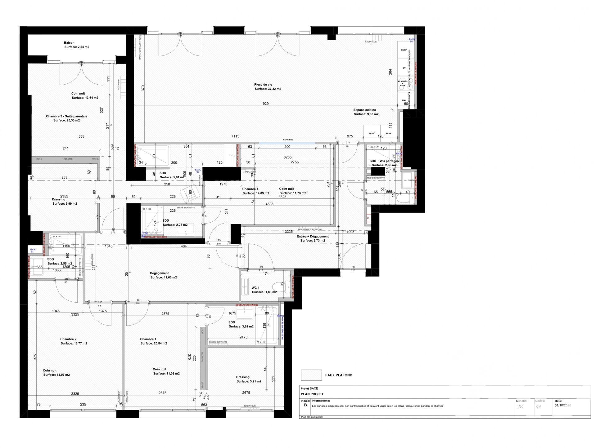
Iad France - Guillaume Gibeaux vous propose : Situé dans un immeuble de standing, sur l'avenue de Saxe, cet appartement va offrir tout le confort moderne attendu dans un tel lieu. 140 m² entièrement rénovés, grande pièce de vie ouverte sur la cuisine, 4 chambres dont minimum 3 avec salle d'eau et 2 avec dressing, 2 W. C. séparés, 1 balcon et une grande cave. Baigné de lumière grâce à ses grandes ouvertures en bois double vitrage, cet appartement en étage élevé assurera à la fois une vie citadine et un sentiment de calme et de sérénité. Situé à proximité immédiate des transports en commun (métro B & D, arrêt Saxe-Gambetta), des bus, des supermarchés, des restaurants, des bars & des commerces de proximité. Immeuble sécurisé avec présence d'une gardienne. Garage à vélos dans la copropriété. Ici, vous avez l'opportunité d'acheter l'appartement dans son état actuel (sans rénovations) et un pack travaux en supplément à 140 000 €. Le pack travaux comprend les plans réalisés par l'architecte, les matériaux, les huisseries bois double vitrage, la main-d'OEuvre et le suivi de chantier, réalisé par des professionnels ayant déjà fait leurs preuves. Les plans et les devis ont déjà été réalisés mais peuvent être modifiés, à votre demande. Informations supplémentaires sur simple appel. La presente annonce immobiliere vise 2 lots situés dans une copropriété de 61 lots au total et ne faisant l'objet d'aucune procédure en cours citée à l'article L. 721-1 du code de la construction et de l'habitation. Montant moyen mensuel de charges déclaré par le vendeur : 373.33€ par mois (soit 4480 € annuel). Honoraires d'agence à la charge du vendeur. Information d'affichage énergétique sur ce bien : classe ENERGIE D indice 237 et classe CLIMAT D indice 43. Les informations sur les risques auxquels ce bien est exposé, y compris l'obligation légale de débroussaillement, sont disponibles sur le site Géorisques : http://www.georisques.gouv.fr. La présente annonce immobilière a été rédigée sous la responsabilité éditoriale de M Guillaume Gibeaux mandataire indépendant en immobilier (sans détention de fonds), agent commercial de la SAS I@D France immatriculé au RSAC de LYON sous le numéro 904153798, titulaire de la carte de démarchage immobilier pour le compte de la société I@D France SAS.
À proximité
Recherche des commodités à proximité...
Détails de l'annonce
Localisation
Ville
Lyon
Pays
FR
Diagnostics / Énergie
Diagnostic DPE
237
Diagnostic GES
43
Surfaces / Pièces / Composition
Nombre d’étages
10
Étage
6
Chauffage et diagnostics
Diagnostic de performance énergétique (DPE)
a
b
c
d
e
f
g
Indice d'émission de gaz à effet de serre (GES)
a
b
c
d
e
f
g
