Type
Bien immobilierTarif
197 500 €Chambres
0Salles de bain
0Vente Appartement 5 pièces
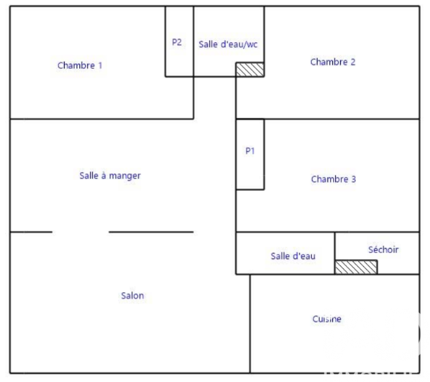
Iad France - Céline SUPIOT vous propose : THEBAUDIERES / VAL DE CHEZINE / PROCHE TRAM ligne 3 - Bel et grand appartement traversant au rez-de-chaussée surélevé d'une copropriété sécurisée. Il comprend un salon- séjour exposé Sud de 33 m² environ, une cuisine aménagée et équipée avec son arrière cuisine, trois chambres, une salle d'eau rénovée, un wc séparé avec 2e douche. Idéal colocation - possible 4 chambres - 2 salles d’eau. Cet appartement bénéficie d'un stationnement extérieur et d'une cave. Cuisine et salle d'eau rénovée, menuiseries en double vitrage. Les charges de copropriété sont de 124 E / mois Il y a lieu d'ajouter les charges de chauffage (réseau de chauffage urbain) ainsi que l'eau calculés selon les tantiemes. La presente annonce immobiliere vise 3 lots situés dans une copropriété de 550 lots au total et ne faisant l'objet d'aucune procédure en cours citée à l'article L. 721-1 du code de la construction et de l'habitation. Montant moyen mensuel de charges déclaré par le vendeur : 124€ par mois (soit 1488 € annuel). Honoraires d'agence à la charge du vendeur. Information d'affichage énergétique sur ce bien : classe ENERGIE E indice 265 et classe CLIMAT C indice 27. Les informations sur les risques auxquels ce bien est exposé, y compris l'obligation légale de débroussaillement, sont disponibles sur le site Géorisques : http://www.georisques.gouv.fr. La présente annonce immobilière a été rédigée sous la responsabilité éditoriale de Mme Céline SUPIOT mandataire indépendant en immobilier (sans détention de fonds), agent commercial de la SAS I@D France immatriculé au RSAC de Nantes sous le numéro 509926804, titulaire de la carte de démarchage immobilier pour le compte de la société I@D France SAS.
À proximité
Recherche des commodités à proximité...
Détails de l'annonce
Localisation
Ville
Saint-Herblain
Pays
FR
Diagnostics / Énergie
Diagnostic DPE
265
Diagnostic GES
27
Surfaces / Pièces / Composition
Nombre d’étages
4
Chauffage et diagnostics
Diagnostic de performance énergétique (DPE)
a
b
c
d
e
f
g
Indice d'émission de gaz à effet de serre (GES)
a
b
c
d
e
f
g
