Type
Bien immobilierTarif
249 000 €Chambres
1Salles de bain
0Vente Appartement 2 pièces
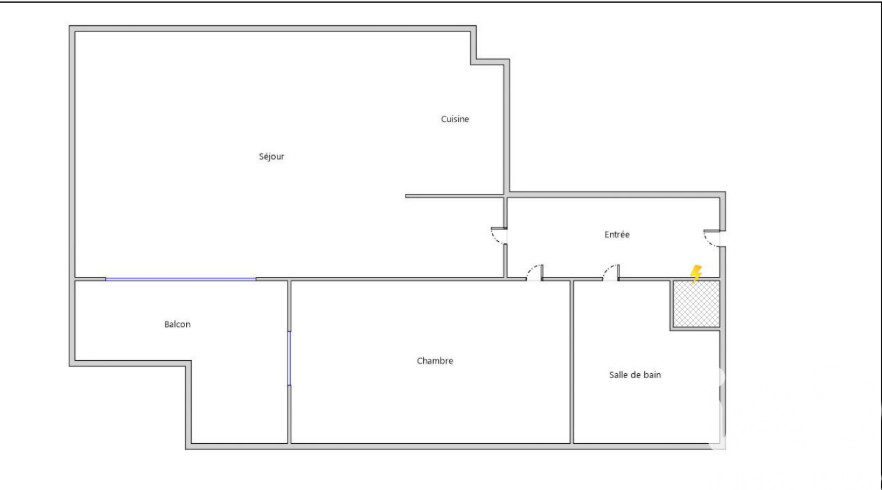
Iad France - Eric Masset vous propose : T2 + 2 PLACES DE PARKING DONT UNE PLACE PMR. Bienvenue dans ce ravissant appartement situé à Cormeilles-en-Parisis, offrant un cadre de vie moderne et confortable. Construit en 2018, cet appartement de type T2 d'une surface de 49 m² propose des prestations haut de gamme dans une résidence de standing. Dès l'entrée, vous serez séduit par l'agencement astucieux de cet appartement. Vous découvrirez une entrée, un bel espace de vie lumineux comprenant un séjour avec cuisine ouverte avec accès au balcon, une salle de bain avec WC, une grande chambre cosy donnant également sur le balcon offrant un espace extérieur privatif pour vous détendre et profiter de l'air frais. Ce bien bénéficie d'une excellente isolation et d'un système de chauffage au gaz naturel, assurant votre confort en toutes saisons. De plus, la résidence est équipée de la fibre optique, d'un ascenseur pour un accès facilité et est sécurisée avec un digicode, un interphone et un système de vidéo surveillance. Idéalement situé au 1er étage d'un immeuble de 2 niveaux. Vous disposerez également de 2 places de parking dont une place PMR pour garer facilement vos véhicules en toute sécurité. Cette résidence moderne et bien entretenue vous offre un cadre de vie paisible à proximité des commerces et des transports en commun. Ne manquez pas l'opportunité d'acquérir ce petit bijou immobilier à Cormeilles-en-Parisis. Contactez-nous dès maintenant pour organiser une visite ! La presente annonce immobiliere vise 3 lots situés dans une copropriété de 65 lots au total et ne faisant l'objet d'aucune procédure en cours citée à l'article L. 721-1 du code de la construction et de l'habitation. Montant moyen mensuel de charges déclaré par le vendeur : 200€ par mois (soit 2400 € annuel). Honoraires d'agence à la charge du vendeur. Information d'affichage énergétique sur ce bien : classe ENERGIE C indice 91 et classe CLIMAT C indice 16. Les informations sur les risques auxquels ce bien est exposé, y compris l'obligation légale de débroussaillement, sont disponibles sur le site Géorisques : http://www.georisques.gouv.fr. La présente annonce immobilière a été rédigée sous la responsabilité éditoriale de M Eric Masset mandataire indépendant en immobilier (sans détention de fonds), agent commercial de la SAS I@D France immatriculé au RSAC de BEAUVAIS sous le numéro 522642099, titulaire de la carte de démarchage immobilier pour le compte de la société I@D France SAS.
À proximité
Recherche des commodités à proximité...
Détails de l'annonce
Localisation
Ville
Cormeilles-en-Parisis
Pays
FR
Diagnostics / Énergie
Diagnostic DPE
91
Diagnostic GES
16
Surfaces / Pièces / Composition
Nombre d’étages
2
Chauffage et diagnostics
Diagnostic de performance énergétique (DPE)
a
b
c
d
e
f
g
Indice d'émission de gaz à effet de serre (GES)
a
b
c
d
e
f
g
