Type
Bien immobilierTarif
139 000 €Chambres
2Salles de bain
0Vente Maison de ville 4 pièces
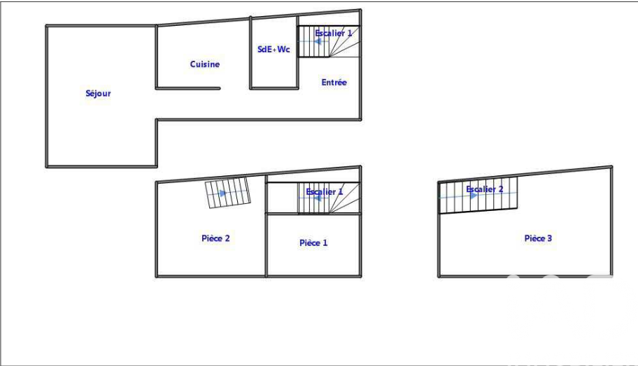
Iad France - Sofyane Tarraf vous propose : - Idéal pour investisseur ou primo accédant / Mieux qu'un appartement pas de charges de copropriété ! - Venez découvrir cette charmante maison de ville en pierre de 74 m² qui comprend au : * Rdc : entrée, séjour lumineux de 22 m², cuisine E / A, salle d'eau avec wc * 1er étage : palier desservant une chambre et un dressing pouvant faire office de bureau ou de chambre traversante * 2ème étage : une chambre Les ATOUTS : - Tout électrique / Double vitrage / DPE en C - Charme de la pierre - Proximité avec les commodités (écoles, commerces et gare de Laigneville à 5min) Contactez-moi rapidement pour la visiter ! Honoraires d'agence à la charge du vendeur. Information d'affichage énergétique sur ce bien : classe ENERGIE D indice 215 et classe CLIMAT B indice 5. Les informations sur les risques auxquels ce bien est exposé, y compris l'obligation légale de débroussaillement, sont disponibles sur le site Géorisques : http://www.georisques.gouv.fr. La présente annonce immobilière a été rédigée sous la responsabilité éditoriale de M Sofyane Tarraf mandataire indépendant en immobilier (sans détention de fonds), agent commercial de la SAS I@D France immatriculé au RSAC de COMPIEGNE sous le numéro 888786159, titulaire de la carte de démarchage immobilier pour le compte de la société I@D France SAS.
Cette semaine
Cette annonce est récente
À proximité
Recherche des commodités à proximité...
Détails de l'annonce
Localisation
Ville
Laigneville
Pays
FR
Diagnostics / Énergie
Diagnostic DPE
178
Diagnostic GES
6
Surfaces / Pièces / Composition
Nombre d’étages
3
Chauffage et diagnostics
Diagnostic de performance énergétique (DPE)
a
b
c
d
e
f
g
Indice d'émission de gaz à effet de serre (GES)
a
b
c
d
e
f
g
