Type
Bien immobilierTarif
477 000 €Chambres
0Salles de bain
0Vente Terrain à bâtir 235 m²
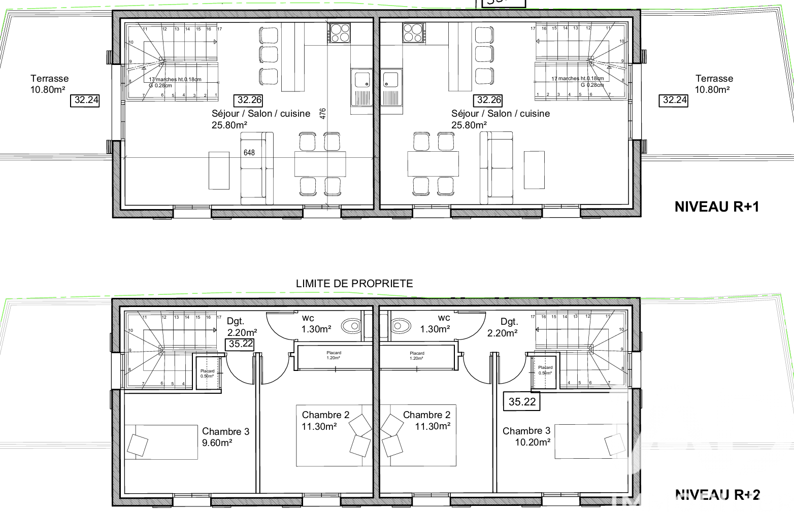
Iad France - Aurélie Querment vous propose : Terrain constructible 235 m² – Projet maison mitoyenne (PC accordé et purgé) À vendre terrain constructible de 235 m², idéal pour la réalisation de deux maisons mitoyennes d’environ 85 et 91 m² chacune. Le projet bénéficie d’un permis de construire déjà accordé et purgé de tout recours, permettant un démarrage rapide des travaux. Caractéristiques : Surface du terrain : 235 m² Projet validé pour 2 maisons mitoyennes en copropriété Garage et places de stationnement prévus Réseaux validés Accord pour les raccordements VRD Permis de construire accordé et purgé des recours Terrain idéal pour investisseur, projet de construction rapide, avec toutes les autorisations administratives déjà obtenues. Pour plus d’informations ou organiser une visite, merci de nous contacter. Honoraires d'agence à la charge du vendeur. Bien non soumis au DPE. Les informations sur les risques auxquels ce bien est exposé, y compris l'obligation légale de débroussaillement, sont disponibles sur le site Géorisques : http://www.georisques.gouv.fr. La présente annonce immobilière a été rédigée sous la responsabilité éditoriale de Mme Aurélie Querment mandataire indépendant en immobilier (sans détention de fonds), agent commercial de la SAS I@D France immatriculé au RSAC de Nice sous le numéro 848983557, titulaire de la carte de démarchage immobilier pour le compte de la société I@D France SAS.
Cette semaine
Cette annonce est récente
À proximité
Recherche des commodités à proximité...
Détails de l'annonce
Localisation
Ville
Menton
Pays
FR
Surfaces / Pièces / Composition
Nombre d’étages
Chauffage et diagnostics
Diagnostic de performance énergétique (DPE)
a
b
c
d
e
f
g
Indice d'émission de gaz à effet de serre (GES)
a
b
c
d
e
f
g
