Type
Bien immobilierTarif
247 000 €Chambres
3Salles de bain
0Vente Maison/villa 4 pièces
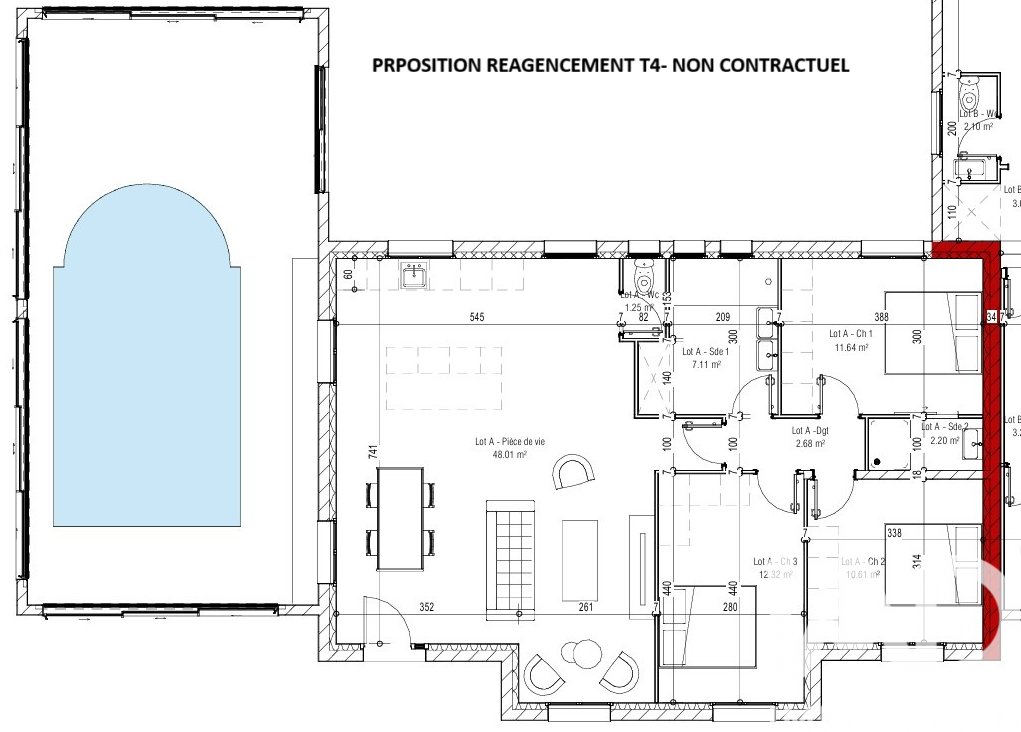
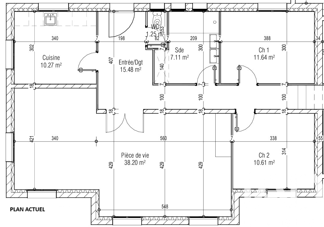
Iad France - Daisy Bernasconi vous propose : À Martillac centre, maison individuelle de plain-pied à réagencer et rénover. Située dans un quartier calme, cette maison offre un cadre propice à la sérénité tout en étant proche des commodités et des axes de transport. L'intérieur actuel de la maison se compose d'une grande entrée, de 2 chambres existantes, une salle de bain, une cuisine séparée et une pièce de vie de 38 m². Amateur de rénovation, laissez vous tenter par ce projet de 95 m² qui vous permettra de créer une troisième chambre, une salle d'eau supplémentaire et d'ouvrir la cuisine pour obtenir une nouvelle pièce de vie de 51 m² avec vue sur la piscine couverte. Côté extérieur, vous profiterez de deux terrasses, de places de parking en aériens sur une parcelle de 585 m². Les expositions sud et est offrent une luminosité naturelle agréable tout au long de la journée, Maison chauffée au gaz, équipée de menuiseries double vitrage pvc. Cheminée à foyer ouvert à supprimer ou conserver. Une vidéo du bien, ainsi que le plan actuel et une proposition de réagencement seront mis à votre disposition. N'hésitez pas à visiter cette maison à fort potentiel pour concrétiser vos projets de vie dans un commune dynamique. Honoraires d'agence à la charge du vendeur. Information d'affichage énergétique sur ce bien : classe ENERGIE D indice 198 et classe CLIMAT D indice 42. Les informations sur les risques auxquels ce bien est exposé, y compris l'obligation légale de débroussaillement, sont disponibles sur le site Géorisques : http://www.georisques.gouv.fr. La présente annonce immobilière a été rédigée sous la responsabilité éditoriale de Mme Daisy Bernasconi mandataire indépendant en immobilier (sans détention de fonds), agent commercial de la SAS I@D France immatriculé au RSAC de BORDEAUX sous le numéro 885193003, titulaire de la carte de démarchage immobilier pour le compte de la société I@D France SAS.
À proximité
Recherche des commodités à proximité...
Détails de l'annonce
Localisation
Ville
Martillac
Pays
FR
Diagnostics / Énergie
Diagnostic DPE
198
Diagnostic GES
42
Surfaces / Pièces / Composition
Nombre d’étages
Chauffage et diagnostics
Diagnostic de performance énergétique (DPE)
a
b
c
d
e
f
g
Indice d'émission de gaz à effet de serre (GES)
a
b
c
d
e
f
g
