Type
Bien immobilierTarif
289 000 €Chambres
4Salles de bain
0Vente Maison traditionnelle 8 pièces
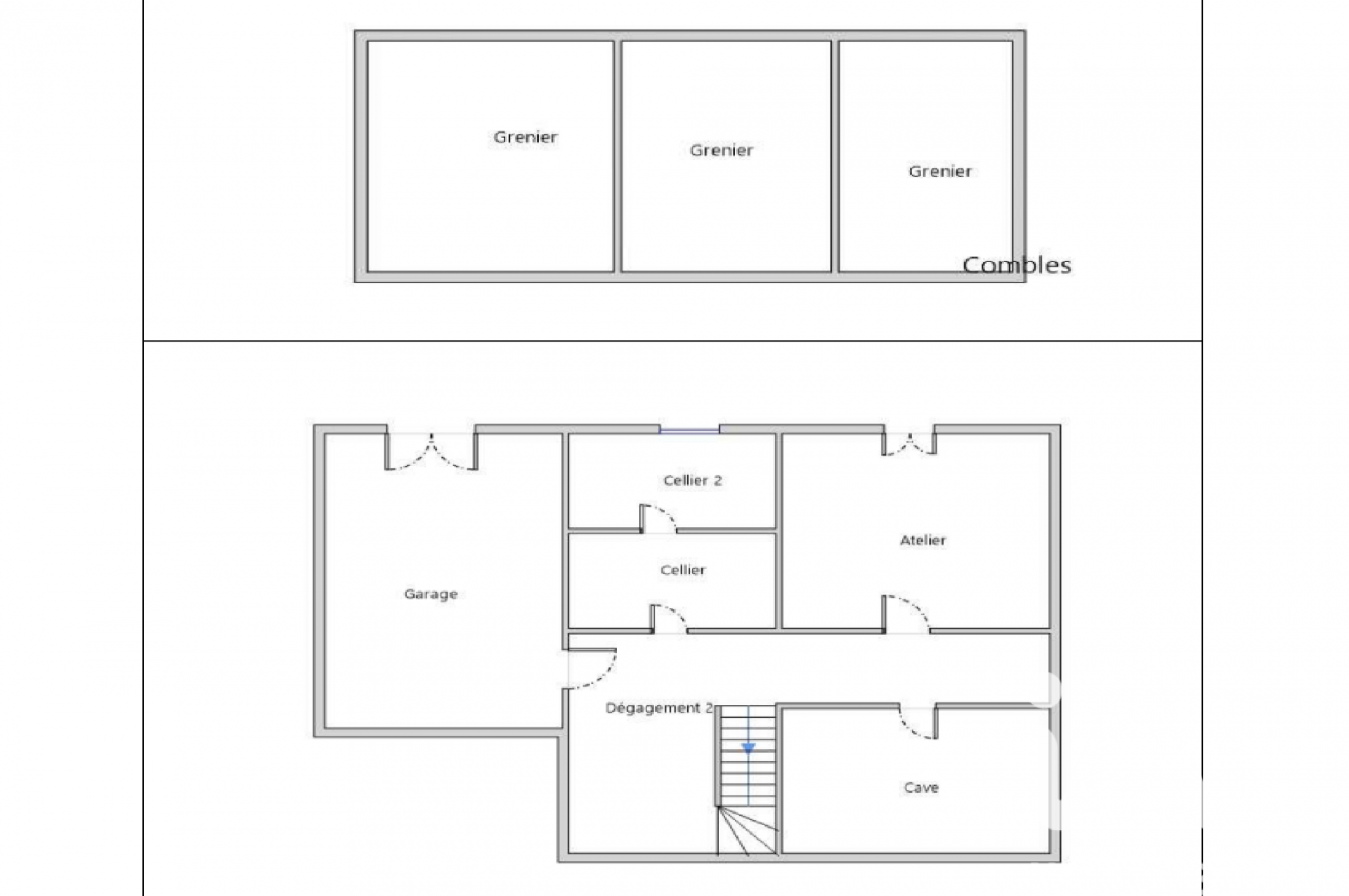
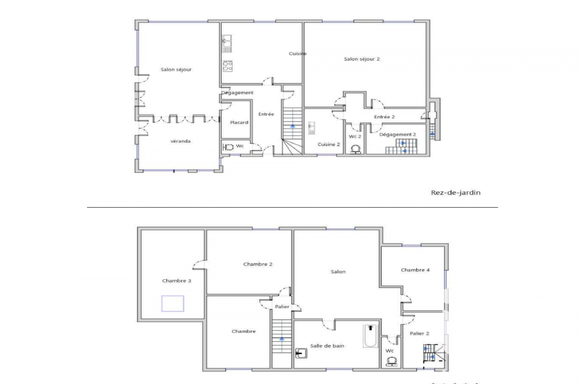
Iad France - Florian Voisin vous propose : Mantes-la-Jolie – Secteur calme, proche de toutes les commodités Maison individuelle de 185 m² habitables (271 m² au sol) sur un terrain de 1 466 m². Travaux à prévoir. Fort potentiel d’aménagement. Cette bâtisse rare convient parfaitement à une grande famille, à un investisseur ou à un projet multi-génération. La maison dispose de trois portails extérieurs. Elle bénéficie d’un double accès extérieur, à l’avant et à l’arrière du terrain. L’accès arrière permet un accès direct au bord de Seine. Le bien possède deux entrées indépendantes. Il était initialement divisé en deux logements séparés, ce qui permet facilement la création de plusieurs appartements. La maison comprend un sous-sol total accessible depuis l’intérieur et l’extérieur. Le rez-de-chaussée est divisé en deux parties et dispose de deux cuisines existantes. L’étage et les combles offrent un réel potentiel d’aménagement. Le bien comprend, 4 chambres, 3 WC, une dépendance et un abri bois. Le terrain est plat, clos et sans vis-à-vis, idéal pour un projet familial ou un aménagement extérieur. Caractéristiques techniques : Chauffage par radiateurs électriques individuels + raccordement au gaz de ville, menuiseries en simple vitrage bois au rez-de-chaussée et en double vitrage bois à l’étage côté rue, ballon d’eau chaude de 150 litres, raccordement au tout-à-l’égout et fibre optique disponible. Urbanisme : Situé en zone UDa, favorable aux projets de construction ou de rénovation. Classé en zone ZP1 (site patrimonial remarquable). Les modifications extérieures nécessitent une autorisation afin de préserver le patrimoine architectural. Ce bien offre une opportunité rare grâce à son volume, la taille de son terrain, ses accès multiples et son accès direct à la Seine. Idéal pour un projet d’habitation familiale ou d’investissement. Honoraires d'agence à la charge du vendeur. Information d'affichage énergétique sur ce bien : classe ENERGIE G indice 549 et classe CLIMAT C indice 18. Les informations sur les risques auxquels ce bien est exposé, y compris l'obligation légale de débroussaillement, sont disponibles sur le site Géorisques : http://www.georisques.gouv.fr. La présente annonce immobilière a été rédigée sous la responsabilité éditoriale de M Florian Voisin mandataire indépendant en immobilier (sans détention de fonds), agent commercial de la SAS I@D France immatriculé au RSAC de versailles sous le numéro 890498223, titulaire de la carte de démarchage immobilier pour le compte de la société I@D France SAS.
À proximité
Recherche des commodités à proximité...
Détails de l'annonce
Localisation
Ville
Mantes-la-Jolie
Pays
FR
Diagnostics / Énergie
Diagnostic DPE
549
Diagnostic GES
18
Chauffage et diagnostics
Diagnostic de performance énergétique (DPE)
a
b
c
d
e
f
g
Indice d'émission de gaz à effet de serre (GES)
a
b
c
d
e
f
g
