Type
Bien immobilierTarif
2 000 € /moisChambres
0Salles de bain
0Location Bureaux 60 m²
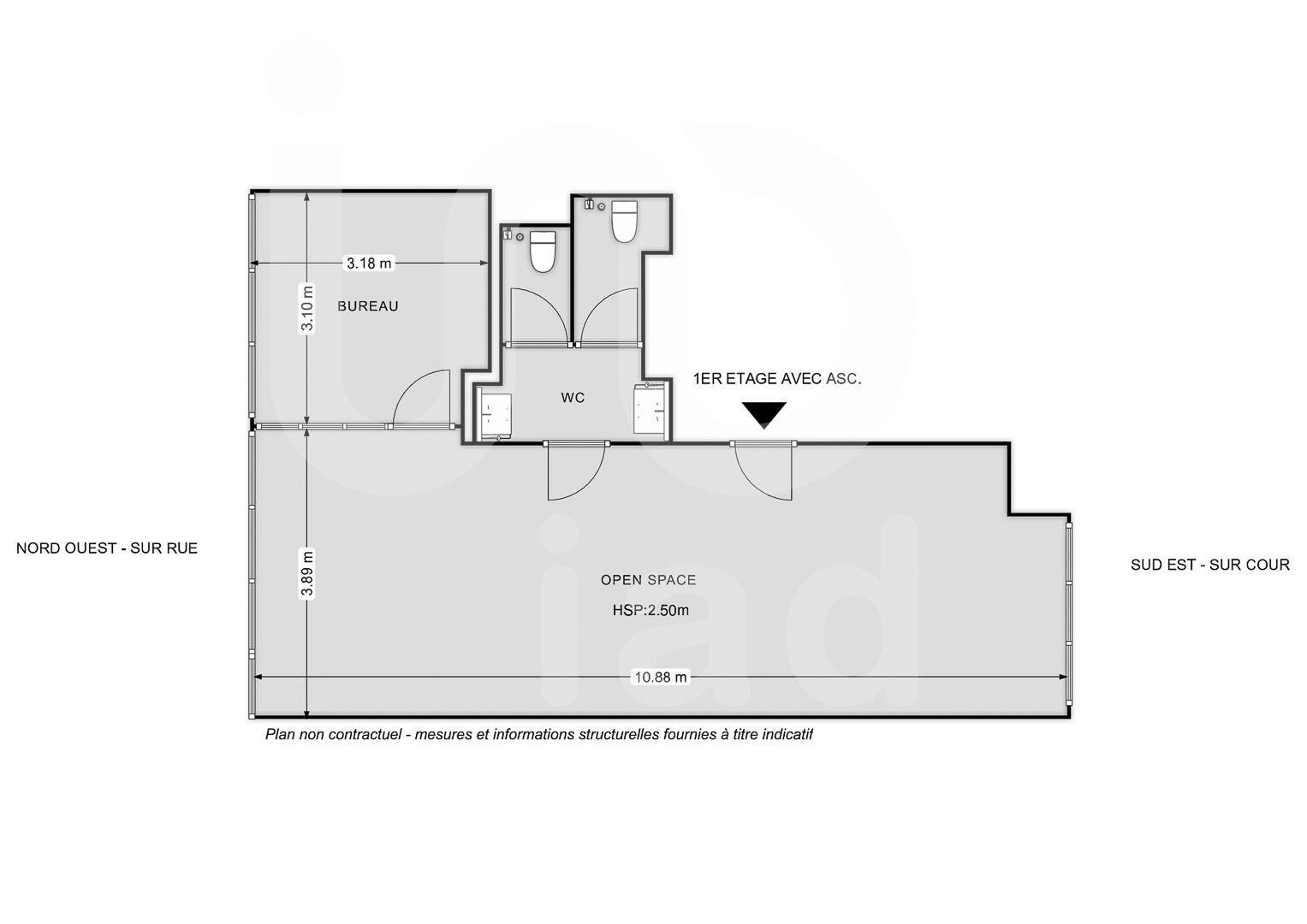
Iad France - Arnaud Porcheron (06 18 68 38 65) vous propose : BUREAUX 60 m² environ - PARIS 11e - RUE NEUVE DES BOULETS À louer, bureaux de 60 m² environ au 1er étage d’un immeuble de bureaux, bien entretenu, situé rue Neuve des Boulets, Paris 11e. Idéalement placés entre les métros Charonne et Rue des Boulets (ligne 9), à deux pas de la rue de Charonne. Disponibles immédiatement, ces bureaux bénéficient d’un roof top partagé, de double vitrage, d’une fibre optique en place et d’un environnement dynamique. Loyer annuel : 21 000€ / an HT HC (1 750€ / mois) Charges collectives : 250€ / mois HT Dépôt de garantie : 5 250€ Honoraires : 3 150€HT Bail : 3/6 / 9 Taxes annuelles : foncière 1 436€ HT, bureau 1 241€ HT Une belle opportunité dans un secteur recherché. Contactez-nous pour visiter. Information d'affichage énergétique sur le bien associé à cette annonce : DPE NS indice 0 et GES NS indice 0. La présente annonce immobilière a été rédigée sous la responsabilité éditoriale de M. Arnaud Porcheron (ID 65742), Agent Commercial mandataire en immobilier immatriculé au Registre Spécial des Agents Commerciaux (RSAC) du Tribunal de Commerce de PARIS sous le numéro 820581007 Retrouvez tous nos biens sur notre site internet. www.iadfrance.fr.
À proximité
Recherche des commodités à proximité...
Détails de l'annonce
Localisation
Ville
Paris
Pays
FR
Finances / Mandat / Références
Honoraires
3 €
Charges
250 €
Surfaces / Pièces / Composition
Nombre d’étages
Chauffage et diagnostics
Diagnostic de performance énergétique (DPE)
a
b
c
d
e
f
g
Indice d'émission de gaz à effet de serre (GES)
a
b
c
d
e
f
g
