Trouver...

Language: FR

Devise: EUR

Vente Appartement 3 pièces

Publié le 18 July 2025
Type
Bien immobilier
Tarif
127 500 €
Chambres
2
Salles de bain
0

Vente Appartement 3 pièces

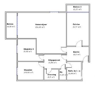
Iad France - Alexia Sanchez vous propose : VAULX-EN-VELIN – MAS SUD T3 lumineux de 71 m² – Balcons, cave et garage – Copropriété verdoyante Découvrez cet appartement situé au 9ᵉ étage avec ascenseur, qui profite d’une vue dégagée et de deux balcons. Il allie fonctionnalité et luminosité, offrant un cadre de vie pratique et agréable pour habiter ou investir. L’entrée dispose d’un placard intégré, tandis que la cuisine indépendante ouvre sur un balcon privatif. Le séjour est spacieux et lumineux et donne accès à un second balcon, parfait pour installer un coin repas ou se détendre. Deux chambres confortables, une salle de bains, des WC séparés et un cellier viennent compléter ce bien pensé pour le quotidien. Le logement est équipé de menuiseries aluminium double vitrage et de volets roulants électriques. Le chauffage est collectif urbain et la copropriété est bien entretenue, ce qui vous garantit un appartement prêt à vivre sans travaux immédiats. Une cave privative est incluse et un garage fermé est disponible. Le parking collectif de la copropriété complète les prestations. Ce T3 séduira ceux qui recherchent un appartement lumineux, pratique et valorisable, que ce soit pour y habiter ou pour investir. Contactez-moi dès maintenant pour visiter ou profiter de la visite virtuelle ! La presente annonce immobiliere vise 2 lots situés dans une copropriété de 391 lots au total et ne faisant l'objet d'aucune procédure en cours citée à l'article L. 721-1 du code de la construction et de l'habitation. Montant moyen mensuel de charges déclaré par le vendeur : 269.33€ par mois (soit 3232 € annuel). Honoraires d'agence à la charge du vendeur. Information d'affichage énergétique sur ce bien : classe ENERGIE D indice 184 et classe CLIMAT C indice 16. Les informations sur les risques auxquels ce bien est exposé, y compris l'obligation légale de débroussaillement, sont disponibles sur le site Géorisques : http://www.georisques.gouv.fr. La présente annonce immobilière a été rédigée sous la responsabilité éditoriale de Mme Alexia Sanchez mandataire indépendant en immobilier (sans détention de fonds), agent commercial de la SAS I@D France immatriculé au RSAC de LYON sous le numéro 849 811 336, titulaire de la carte de démarchage immobilier pour le compte de la société I@D France SAS.

À proximité

Recherche des commodités à proximité...

Détails de l'annonce

Localisation

Ville
Vaulx-en-Velin
Pays
FR

Diagnostics / Énergie

Diagnostic DPE
184
Diagnostic GES
16

Surfaces / Pièces / Composition

Nombre d’étages
10
Étage
9

Chauffage et diagnostics

Diagnostic de performance énergétique (DPE)
a
b
c
d
e
f
g
Indice d'émission de gaz à effet de serre (GES)
a
b
c
d
e
f
g
Rappelez-moi
Nos partenaires