Type
Bien immobilierTarif
313 500 €Chambres
0Salles de bain
0Vente Maison/villa 6 pièces
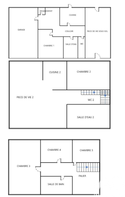
Iad France - Clement Rassin vous propose : Maison entièrement rénovée offrant l’une des meilleures performances énergétiques du marché. Située dans le quartier de Certé, elle bénéficie d’un emplacement idéal, à seulement 500 mètres des écoles, de la gare SNCF et de l’arrêt de bus, rendant le quotidien particulièrement pratique. La maison permet une vie de plain-pied avec, au rez-de-chaussée, une pièce de vie donnant un accès direct au jardin, une cuisine, une salle d’eau avec douche à l’italienne, une spacieuse chambre ainsi qu’un WC indépendant. À l’étage, vous découvrirez une nouvelle pièce de vie de 48 m² avec coin cuisine, bénéficiant d’une triple exposition apportant une belle luminosité. Ce niveau comprend également une salle d’eau avec douche à l’italienne et double vasque, une chambre avec vue sur le jardin, ainsi qu’un WC indépendant. Au dernier étage, la maison propose deux espaces bureaux, une salle d’eau avec WC suspendu, et une grande chambre de 20 m². Un garage de 29 m², traversant grâce à ses deux portes battantes, complète ce bien. Les atouts : DPE A Volets roulants motorisés Beaux volumes Possibilité d’installer un ascenseur Norme RT2012 Pompe à chaleur Quelques travaux sont à prévoir. Honoraires d'agence à la charge de l'acquéreur. Prix honoraires inclus : 313500 euros. Prix hors honoraires : 300000 euros. Honoraires TTC à la charge de l'acquéreur (4,50% du prix du bien hors honoraires) : 13500 euros. Information d'affichage énergétique sur ce bien : classe ENERGIE A indice 51 et classe CLIMAT A indice 2. Les informations sur les risques auxquels ce bien est exposé, y compris l'obligation légale de débroussaillement, sont disponibles sur le site Géorisques : http://www.georisques.gouv.fr. La présente annonce immobilière a été rédigée sous la responsabilité éditoriale de M Clement Rassin mandataire indépendant en immobilier (sans détention de fonds), agent commercial de la SAS I@D France immatriculé au RSAC de SAINT NAZAIRE sous le numéro 878526946, titulaire de la carte de démarchage immobilier pour le compte de la société I@D France SAS.
Ce mois
Cette annonce est récente
À proximité
Recherche des commodités à proximité...
Détails de l'annonce
Localisation
Ville
Trignac
Pays
FR
Diagnostics / Énergie
Diagnostic DPE
51
Diagnostic GES
2
Surfaces / Pièces / Composition
Nombre d’étages
3
Chauffage et diagnostics
Diagnostic de performance énergétique (DPE)
a
b
c
d
e
f
g
Indice d'émission de gaz à effet de serre (GES)
a
b
c
d
e
f
g
