Trouver...

Language: FR

Devise: EUR

Vente Appartement 3 pièces

Publié le 15 December 2025
Type
Bien immobilier
Tarif
305 000 €
Chambres
2
Salles de bain
0

Vente Appartement 3 pièces

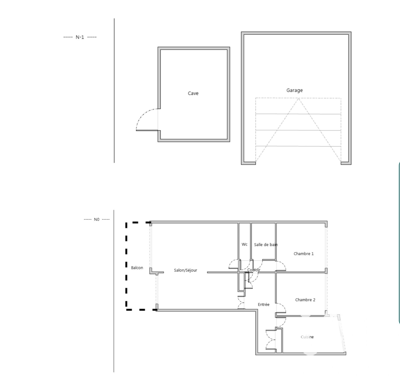
Iad France - Albin Quicampoix vous propose : Lyon 3ᵉ – Part-Dieu – Dernier étage avec balcon, stationnement et réel potentiel de valorisation À deux pas de la Part-Dieu, au cOEur du 3ᵉ arrondissement de Lyon, ce T3 traversant de 82 m² est situé au 6ᵉ et dernier étage avec ascenseur d’une résidence bien entretenue des années 70. Un bien rare sur le secteur, recherché pour son dernier étage, sa luminosité, son extérieur, sa vue dégagée et son potentiel d’évolution. Dernier étage : lumière, calme et respiration en cOEur de ville Installé au dernier niveau, l’appartement bénéficie d’une luminosité constante et d’un calme appréciable, renforcés par l’étage élevé et de larges ouvertures. Le séjour double de plus de 30 m², largement ouvert sur l’extérieur, profite de grandes baies vitrées donnant accès à un balcon d’environ 8 m² exposé Sud. Un véritable prolongement de la pièce de vie, idéal pour déjeuner au soleil, profiter d’une vue dégagée et retrouver une sensation d’espace devenue rare dans le secteur Part-Dieu. Une distribution fonctionnelle, idéale pour un projet sur mesure Dès l’entrée, le hall avec placard offre une circulation fluide entre les espaces jour et nuit. - Séjour double lumineux et modulable (plus de 30 m²) - Cuisine indépendante de plus de 11 m², avec potentiel d’ouverture ou de réaménagement - Deux chambres de 10 à 11 m², exposées Nord, au calme - Salle de bains à remettre au goût du jour - WC séparés La configuration actuelle permet de créer un espace de vie contemporain, tout en conservant une séparation jour / nuit particulièrement appréciée pour un usage familial ou le télétravail. Prestations et annexes : - Appartement traversant, lumineux toute la journée - Dernier étage avec ascenseur - Balcon d’environ 8 m², bien exposé - Chauffage collectif au gaz - Volets roulants (électriques côté séjour, manuels côté chambres) - Cave de 4 m² - Place de stationnement privative incluse - Box fermé en supplément : 25 000 € (plus de 14 m²) - DPE : D - Façade refaite il y a 4 à 5 ans Emplacement stratégique – Lyon 3 / Part-Dieu Situé 16 rue François Gillet, l’appartement bénéficie d’un environnement particulièrement recherché : - Gare Part-Dieu, centre commercial et quartier d’affaires accessibles rapidement - Tramways, métro et bus à proximité immédiate - Commerces, écoles et services du quotidien à pied Un secteur reconnu pour sa forte demande, sa liquidité et son potentiel patrimonial. Un bien à fort potentiel de valorisation Dernier étage, surface confortable, extérieur, luminosité et solutions de stationnement : ce bien constitue une base de projet solide, aussi bien pour - une résidence principale durable et confortable, - qu’un investissement patrimonial de qualité dans un secteur clé de Lyon. Prix de vente : 305 000 € (appartement + cave + stationnement privatif) Box fermé en supplément : 25 000 € Les derniers étages avec balcon et stationnement restent rares sur le secteur Part-Dieu. Les visites seront organisées après un échange préalable, afin de vérifier l’adéquation avec votre projet. La presente annonce immobiliere vise 3 lots situés dans une copropriété de 135 lots au total et ne faisant l'objet d'aucune procédure en cours citée à l'article L. 721-1 du code de la construction et de l'habitation. Montant moyen mensuel de charges déclaré par le vendeur : 311.13€ par mois (soit 3733.56 € annuel). Honoraires d'agence à la charge du vendeur. Information d'affichage énergétique sur ce bien : classe ENERGIE D indice 206 et classe CLIMAT D indice 42. Les informations sur les risques auxquels ce bien est exposé, y compris l'obligation légale de débroussaillement, sont disponibles sur le site Géorisques : http://www.georisques.gouv.fr. La présente annonce immobilière a été rédigée sous la responsabilité éditoriale de M Albin Quicampoix mandataire indépendant en immobilier (sans détention de fonds), agent commercial de la SAS I@D France immatriculé au RSAC de LYON sous le numéro 917987745, titulaire de la carte de démarchage immobilier pour le compte de la société I@D France SAS.

À proximité

Recherche des commodités à proximité...

Détails de l'annonce

Localisation

Ville
Lyon
Pays
FR

Diagnostics / Énergie

Diagnostic DPE
206
Diagnostic GES
42

Surfaces / Pièces / Composition

Nombre d’étages
6
Étage
6

Chauffage et diagnostics

Diagnostic de performance énergétique (DPE)
a
b
c
d
e
f
g
Indice d'émission de gaz à effet de serre (GES)
a
b
c
d
e
f
g
Rappelez-moi
Nos partenaires