Type
Bien immobilierTarif
820 000 €Chambres
5Salles de bain
0Vente Appartement 7 pièces
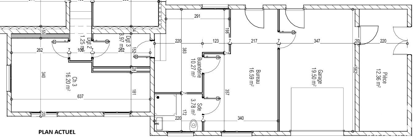
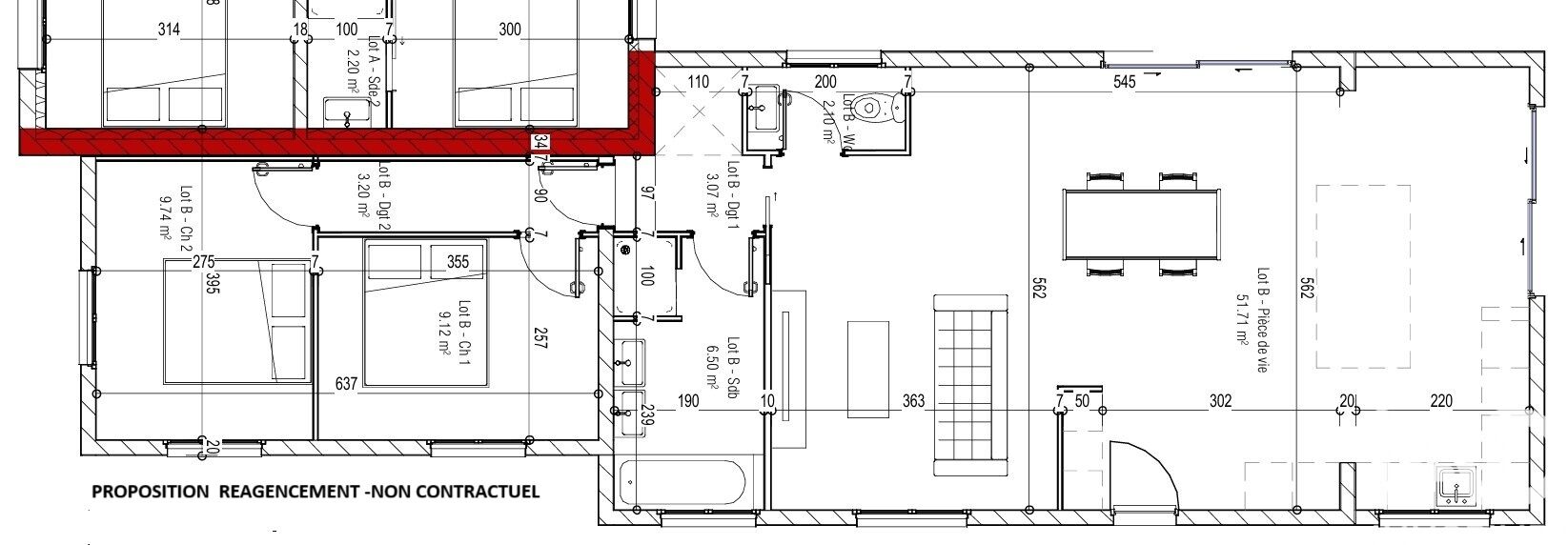
Iad France - Virginie Belart vous propose : ÉLÉGANCE HAUSSMANNIENNE FACE AU RHÔNE – T7 DE 187 m² - 1er - CAVE - GRENIER UN PANORAMA RARE SUR LES BERGES DU RHONE Situé en première ligne face au Rhône, à proximité immédiate de l’hôpital Saint-Luc Saint-Joseph, ce très bel appartement d'angle de 187,41 m² vous offre chaque jour un panorama unique sur le fleuve, ses berges, et la basilique de Fourvière. LE CACHET ABSOLU DE L'ANCIEN Dès l'entrée, vous serez séduits par les volumes généreux avec belle luminosité et les éléments de caractère conservés : Moulures type Haussmannien et belle hauteur sous plafond Parquets en chêne massif apportant chaleur et authenticité. Cheminées au marbre veiné présentes dans chaque pièce, soulignant le prestige du bien. Placards intégrés tout hauteur offrant de nombreux rangements. UN ESPACE FAMILIAL GÉNÉREUX * Entrée 18.59 m² * 1 salon 28.13 m² * 1 salle à manger de 24.81 m² Grâce à une configuration modulable, elle peut être réunie au salon pour offrir une réception de plus de 50 m², voire 70 m² en absorbant la chambre attenante * Cuisine équipée actuellement fermée avec vue sur cour intérieure * 5 chambres : 11.22 m² - 14.22 m² - 17.27 m² - 15.89 m² - 18.04 m² * 1 dressing * 1 salle de bains communicante avec l'une des chambres * 1 salle d'eau indépendante * 2 WC séparés * Annexes : Une cave et un grenier complètent ce bien pour un stockage optimisé. LES PRESTATIONS TECHNIQUES Immeuble de standing avec mur en pierre de taille Façade entièrement rénovée en 2024 Ascenseur Porte blindée Tordjman 7 points Fenêtres bois double vitrage Volets persiennes Chauffage : Individuel au gaz Aucune anomalie sur l'état de l'installation intérieure de gaz Aucune anomalie sur l'état de l'installation intérieure d'électricité ACCES - TRANSPORTS Métro - Tram - Bus - Gare - Tous accessibles sans voiture A proximité immédiate T1 - T2 - Métro A Gare Perrache - Métro B Jean Macé A deux pas des universités Lyon 3 et Lyon 2 Copropriété de 17 lots principaux N'attendez plus, appelez-nous et organisons ensemble une visite ! Disponibles 7 / 7 jours La presente annonce immobiliere vise 3 lots situés dans une copropriété de 53 lots au total et ne faisant l'objet d'aucune procédure en cours citée à l'article L. 721-1 du code de la construction et de l'habitation. Montant moyen mensuel de charges déclaré par le vendeur : 206.67€ par mois (soit 2480 € annuel). Honoraires d'agence à la charge du vendeur. Information d'affichage énergétique sur ce bien : classe ENERGIE D indice 206 et classe CLIMAT D indice 41. Les informations sur les risques auxquels ce bien est exposé, y compris l'obligation légale de débroussaillement, sont disponibles sur le site Géorisques : http://www.georisques.gouv.fr. La présente annonce immobilière a été rédigée sous la responsabilité éditoriale de Mme Virginie Belart mandataire indépendant en immobilier (sans détention de fonds), agent commercial de la SAS I@D France immatriculé au RSAC de Vienne sous le numéro 804497675, titulaire de la carte de démarchage immobilier pour le compte de la société I@D France SAS.
Cette semaine
Cette annonce est récente
À proximité
Recherche des commodités à proximité...
Détails de l'annonce
Localisation
Ville
Lyon
Pays
FR
Diagnostics / Énergie
Diagnostic DPE
206
Diagnostic GES
41
Surfaces / Pièces / Composition
Nombre d’étages
5
Chauffage et diagnostics
Diagnostic de performance énergétique (DPE)
a
b
c
d
e
f
g
Indice d'émission de gaz à effet de serre (GES)
a
b
c
d
e
f
g
