Type
Bien immobilierTarif
319 000 €Chambres
3Salles de bain
0Vente Maison/villa 4 pièces
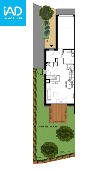
Iad France - William Villemeney vous propose : Située au calme dans le secteur du Corail à Saint-Orens-de-Gameville, découvrez cette ravissante villa T4 de 87 m², alliant confort moderne et sérénité. Au sein d'une copropriété sécurisée (31 lots habitations ), ce bien se distingue par ses prestations de qualité et son excellente performance énergétique. Le rez-de-chaussée : Une entrée avec placards ainsi qu'une buanderie (avec WC) ouvre sur une lumineuse pièce de vie exposée Sud-Est, avec cuisine ouverte équipée, salle à manger et salon. Cet espace se prolonge naturellement vers une terrasse en bois et un jardin clos, parfait pour vos moments de détente. L'étage : Un espace nuit optimisé comprenant une suite parentale de 14.5 m² avec salle d'eau et dressing, deux chambres supplémentaires (10.8 m² / 10.5 m²) avec placards, une salle de bain et un WC indépendant. Les plus : Énergie solaire en autoconsommation, volets roulants électriques, climatisation réversible intégrale, garage avec accès direct et deux places de stationnement privatives. La mitoyenneté d'un seul côté est assurée par un mur de brique donnant une bonne isolation phonique. Localisation : Proche de toutes commodités, à 5 min à pied du centre commercial Leclerc, 600 m des écoles et à proximité immédiate des bus (78,83, 109,201). Un bien prêt à vivre, parfait pour accueillir votre famille dans un cadre moderne et serein. Contactez nous vite pour organiser une visite ! La presente annonce immobiliere vise 2 lots situés dans une copropriété de 64 lots au total et ne faisant l'objet d'aucune procédure en cours citée à l'article L. 721-1 du code de la construction et de l'habitation. Montant moyen mensuel de charges déclaré par le vendeur : 100€ par mois (soit 1200 € annuel). Honoraires d'agence à la charge du vendeur. Information d'affichage énergétique sur ce bien : classe ENERGIE B indice 67 et classe CLIMAT B indice 10. Les informations sur les risques auxquels ce bien est exposé, y compris l'obligation légale de débroussaillement, sont disponibles sur le site Géorisques : http://www.georisques.gouv.fr. La présente annonce immobilière a été rédigée sous la responsabilité éditoriale de M William Villemeney mandataire indépendant en immobilier (sans détention de fonds), agent commercial de la SAS I@D France immatriculé au RSAC de Toulouse sous le numéro 942724147, titulaire de la carte de démarchage immobilier pour le compte de la société I@D France SAS.
À proximité
Recherche des commodités à proximité...
Détails de l'annonce
Localisation
Ville
Saint-Orens-de-Gameville
Pays
FR
Diagnostics / Énergie
Diagnostic DPE
67
Diagnostic GES
10
Surfaces / Pièces / Composition
Nombre d’étages
2
Chauffage et diagnostics
Diagnostic de performance énergétique (DPE)
a
b
c
d
e
f
g
Indice d'émission de gaz à effet de serre (GES)
a
b
c
d
e
f
g
