Type
Bien immobilierTarif
169 000 €Chambres
2Salles de bain
0Vente Appartement 3 pièces
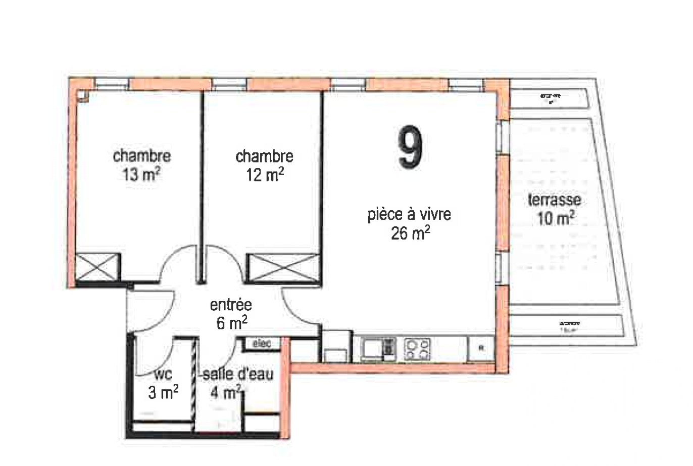
Iad France - Sarah Bendia-Locatelli vous propose : Nouveauté et Exclusivité vente interactive. Montpellier Celleneuve – T3 de 64 m² avec terrasse de 10 m². Idéal pour un premier achat ou pour un investissement locatif. Vous rêvez d’un appartement moderne, lumineux et sans aucun travaux ? Ne cherchez plus, ce bien est fait pour vous. Situé au 1er étage d’une résidence récente avec ascenseur, ce joli T3 se compose de : • Une entrée, • Deux chambres équipées de placards intégrés, • Une salle d’eau ainsi que des WC séparés, • Un spacieux séjour avec cuisine ouverte de 26 m² donnant sur une terrasse couverte de 10 m². Ses atouts : • Chauffage individuel au gaz, • DPE : B, • Charges de copropriété : 130 € par mois, • Taxe foncière : 1 460 €, • Stationnement facile, commerces et tram à seulement quelques pas. Un appartement agréable, fonctionnel et très bien situé, à visiter sans tarder. La présente annonce est soumise à la vente interactive. Prix de départ : 169 000 €. La vente interactive est un procédé de vente immobilière digitale basé sur un système d’enchères en ligne. Elle permet aux acquéreurs de déposer facilement leurs offres d’achat directement en ligne. Le vendeur reste libre d’accepter, à tout moment, toute offre dont le prix et les conditions lui conviennent. Il n’est engagé par aucune offre, quel qu’en soit le montant. Pour toute demande d’information ou de visite, je suis entièrement à votre disposition. Sarah La presente annonce immobiliere vise 2 lots situés dans une copropriété de 40 lots au total et faisant l'objet d'une ou plusieurs procédures en cours citée à l'article L. 721-1 du code de la construction et de l'habitation. Montant moyen mensuel de charges déclaré par le vendeur : 130€ par mois (soit 1560 € annuel). Honoraires d'agence à la charge du vendeur. Information d'affichage énergétique sur ce bien : classe ENERGIE B indice 40 et classe CLIMAT B indice 7. Les informations sur les risques auxquels ce bien est exposé, y compris l'obligation légale de débroussaillement, sont disponibles sur le site Géorisques : http://www.georisques.gouv.fr. La présente annonce immobilière a été rédigée sous la responsabilité éditoriale de Mme Sarah Bendia-Locatelli mandataire indépendant en immobilier (sans détention de fonds), agent commercial de la SAS I@D France immatriculé au RSAC de MONTPELLIER sous le numéro 810086538, titulaire de la carte de démarchage immobilier pour le compte de la société I@D France SAS.
À proximité
Recherche des commodités à proximité...
Détails de l'annonce
Localisation
Ville
Montpellier
Pays
FR
Diagnostics / Énergie
Diagnostic DPE
40
Diagnostic GES
7
Surfaces / Pièces / Composition
Nombre d’étages
3
Chauffage et diagnostics
Diagnostic de performance énergétique (DPE)
a
b
c
d
e
f
g
Indice d'émission de gaz à effet de serre (GES)
a
b
c
d
e
f
g
