Trouver...

Language: FR

Devise: EUR

Vente Maison/villa 4 pièces

Publié le 13 December 2025
Type
Bien immobilier
Tarif
536 000 €
Chambres
3
Salles de bain
0

Vente Maison/villa 4 pièces

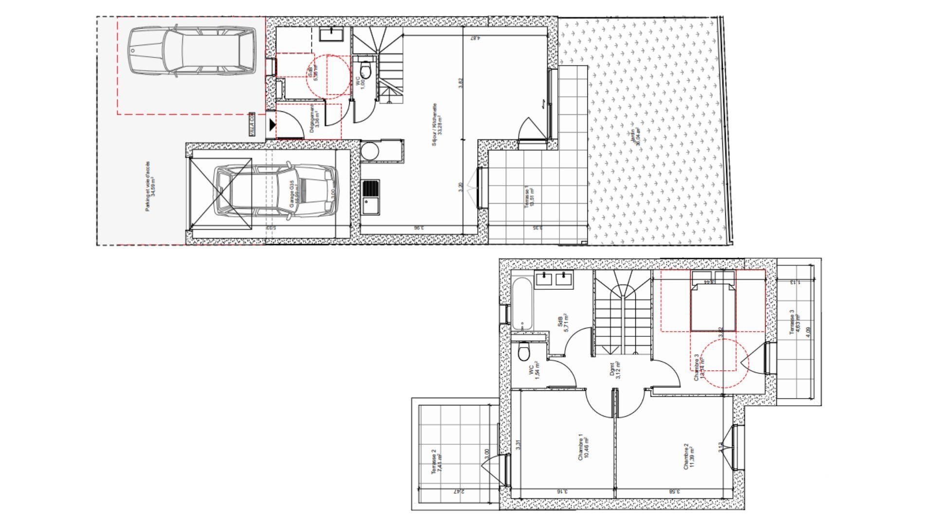
Iad France - Pierre Magerand (06 37 21 92 42) vous propose : Maison 4 pièces avec terrasses et jardin à Bormes-les-Mimosas. Située chemin du Content, au cOEur d’un environnement naturel préservé, la résidence Le Parc du Content conjugue architecture provençale et douceur de vivre méditerranéenne. Implantée dans un quartier calme et arboré, cette adresse incarne sérénité et bien-être au quotidien. Disponible 2028. Une maison raffinée : Cette maison 4 pièces de 89 m² environ habitables se prolonge par une terrasse de 14 m² environ et un jardin privatif de 36 m² environ. - Séjour lumineux de 33 m² environ. - Trois chambres confortables. - Salle d’eau et salle de bain modernes. - Garage et Parking extérieur. De belles prestations : - Menuiseries extérieures à double vitrage isolant. - Isolation thermique et acoustique renforcée. - Espaces verts paysagers, domaine arboré et zones ombragées. - Architecture provençale avec toitures traditionnelles, intégrée dans un environnement naturel. L’art de vivre à Bormes-les-Mimosas : - À proximité du village, de ses boutiques, restaurants et services. - À quelques minutes des plages du Lavandou. - Localisation idéale entre Hyères, Toulon et Saint-Tropez. - Domaine paysager avec promenade végétalisée. - Quartier calme et résidentiel, parfait pour profiter de la douceur méditerranéenne au quotidien. N’hésitez pas à me contacter pour plus d’informations ou pour un accompagnement sur mesure. Honoraires d’agence à la charge du vendeur. Bien non soumis au DPE. Les informations sur les risques auxquels ce bien est exposé sont disponibles sur le site Géorisques : www.georisques.gouv.fr. La présente annonce immobilière a été rédigée sous la responsabilité éditoriale de M. Pierre Magerand EI (ID 86098), mandataire indépendant en immobilier (sans détention de fonds), agent commercial de la SAS I@D France immatriculé au RSAC de Cusset sous le numéro 938729175, titulaire de la carte de démarchage immobilier pour le compte de la société I@D France SAS. Retrouvez tous nos biens sur notre site internet. www.iadfrance.fr.

À proximité

Recherche des commodités à proximité...

Détails de l'annonce

Localisation

Ville
Bormes-les-Mimosas
Pays
FR

Chauffage et diagnostics

Diagnostic de performance énergétique (DPE)
a
b
c
d
e
f
g
Indice d'émission de gaz à effet de serre (GES)
a
b
c
d
e
f
g
Rappelez-moi