Trouver...

Language: FR

Devise: EUR

Vente Duplex 5 pièces

Publié le 28 May 2025
Type
Bien immobilier
Tarif
239 900 €
Chambres
4
Salles de bain
0

Vente Duplex 5 pièces

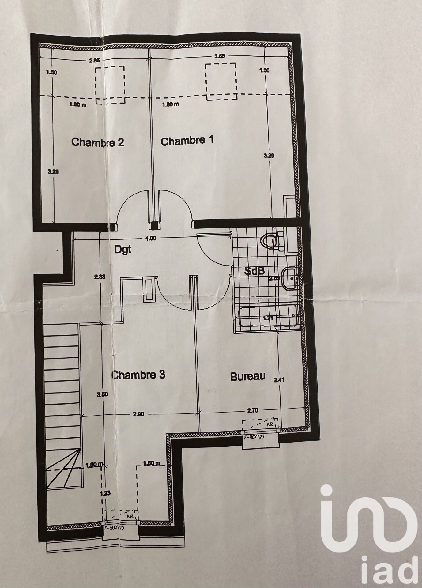
Iad France - Noura Louiza vous propose : RARE SUR LE MARCHÉ Dans une petite résidence récente, sécurisée avec les normes BBC, Venez découvrir ce Duplex T5 de 96 m² au sol et 85 m² en carrez. Il se compose au premier niveau d'une entrée avec placard, d'un séjour Lumineux donnant sur une TERRASSE, une belle cuisine semi ouverte, aménagée et équipée, un WC avec lave mains. À l'étage vous découvrirez trois belles chambres, une quatrième chambre d'enfant qui peut aussi servir de bureau, vous disposez également d'une salle de bains avec un WC. 2 places de parking sécurisées côte à côte viennent compléter ce joli lot. Une possibilité d'aménager les combles car le duplex se trouve en dernier étage Les + Résidence à basse consommation Avec des panneaux solaires Chauffage individuel au GAZ Une possibilité d'aménager les combles car le duplex se trouve et denier étage 2 duplex seulement dans le bloc Idéalement située dans un quartier récent et recherché, vous êtes entre 5 et 10 min à pied de toutes les commodités ( écoles, commerces, hôpital, centres médicaux. ) A seulement 10 min en Bus de la gare SNCF de TRAPPES et de la Gare de Saint Quentin En Yvelines (Direction Paris Montparnasse, La Défense) Accès direct sur la N10 et A12 A 10 min à pied de la Base de Loisirs de SQY COUP DE CŒUR ASSURÉ ! VOUS N'AVEZ PLUS QU'A VENIR Y POSER VOS VALISES La presente annonce immobiliere vise 9 lots situés dans une copropriété de 10 lots au total et ne faisant l'objet d'aucune procédure en cours citée à l'article L. 721-1 du code de la construction et de l'habitation. Montant moyen mensuel de charges déclaré par le vendeur : 133.33€ par mois (soit 1600 € annuel). Honoraires d'agence à la charge du vendeur. Information d'affichage énergétique sur ce bien : classe ENERGIE B indice 102 et classe CLIMAT B indice 9. Les informations sur les risques auxquels ce bien est exposé, y compris l'obligation légale de débroussaillement, sont disponibles sur le site Géorisques : http://www.georisques.gouv.fr. La présente annonce immobilière a été rédigée sous la responsabilité éditoriale de Mme Noura Louiza mandataire indépendant en immobilier (sans détention de fonds), agent commercial de la SAS I@D France immatriculé au RSAC de Versailles sous le numéro 451468581, titulaire de la carte de démarchage immobilier pour le compte de la société I@D France SAS.

À proximité

Recherche des commodités à proximité...

Détails de l'annonce

Localisation

Ville
Trappes
Pays
FR

Diagnostics / Énergie

Diagnostic DPE
102
Diagnostic GES
9

Chauffage et diagnostics

Diagnostic de performance énergétique (DPE)
a
b
c
d
e
f
g
Indice d'émission de gaz à effet de serre (GES)
a
b
c
d
e
f
g
Rappelez-moi