Type
Bien immobilierTarif
155 400 €Chambres
1Salles de bain
0Vente Appartement 2 pièces
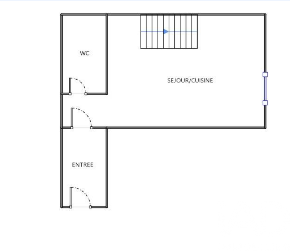
Iad France - Anthony Pain vous propose : Situé dans le très recherché quartier de l’Hôtel de Ville, en plein cOEur de La Rochelle, cet appartement rare prend place au sein d’un magnifique immeuble en pierre du XVIIᵉ siècle, parfaitement entretenu et entièrement sécurisé. Niché au 3ᵉ et dernier étage, ce bien en parfait état offre une atmosphère unique, rappelant subtilement l’intérieur d’un bateau, où chaque espace est optimisé avec élégance. L’entrée propose un espace de rangement fonctionnel ainsi qu’un WC indépendant. Une vaste pièce de vie lumineuse, avec une cuisine aménagée et équipée, idéale pour recevoir du monde dans un cadre convivial et chaleureux. À l’étage, chambre intimiste accompagnée de sa salle d’eau, offrant calme et confort, à l’abri de l’agitation urbaine. Appartement de caractère, mêlant authenticité, cachet de l’ancien et art de vivre rochelais, au cOEur d’un environnement privilégié. La presente annonce immobiliere vise 1 lot situé dans une copropriété de 20 lots au total et ne faisant l'objet d'aucune procédure en cours citée à l'article L. 721-1 du code de la construction et de l'habitation. Montant moyen mensuel de charges déclaré par le vendeur : 54.83€ par mois (soit 658 € annuel). Honoraires d'agence à la charge du vendeur. Information d'affichage énergétique sur ce bien : classe ENERGIE D indice 271 et classe CLIMAT B indice 8. Les informations sur les risques auxquels ce bien est exposé, y compris l'obligation légale de débroussaillement, sont disponibles sur le site Géorisques : http://www.georisques.gouv.fr. La présente annonce immobilière a été rédigée sous la responsabilité éditoriale de M Anthony Pain mandataire indépendant en immobilier (sans détention de fonds), agent commercial de la SAS I@D France immatriculé au RSAC de LA ROCHELLE sous le numéro 509374963, titulaire de la carte de démarchage immobilier pour le compte de la société I@D France SAS.
À proximité
Recherche des commodités à proximité...
Détails de l'annonce
Localisation
Ville
La Rochelle
Pays
FR
Diagnostics / Énergie
Diagnostic DPE
271
Diagnostic GES
8
Surfaces / Pièces / Composition
Nombre d’étages
3
Étage
3
Chauffage et diagnostics
Diagnostic de performance énergétique (DPE)
a
b
c
d
e
f
g
Indice d'émission de gaz à effet de serre (GES)
a
b
c
d
e
f
g
