Trouver...

Language: FR

Devise: EUR

Vente Appartement 3 pièces

Publié le 3 January 2026
Type
Bien immobilier
Tarif
290 000 €
Chambres
2
Salles de bain
0

Vente Appartement 3 pièces

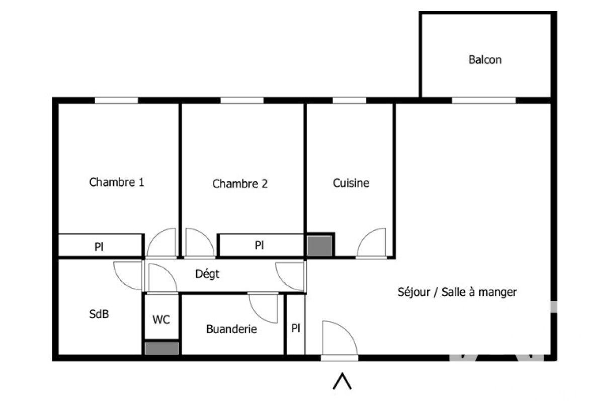
Iad France - Sylvie Le Clouerec vous propose : F3,2 chambres et sa LOGGIA de 7,5 m² en prolongement du salon - Exposition Sud Ouest - Vue dégagée - Au calme + 1 BOX + 1 place de PARKING privative - Hyper Centre Ville de Claye-Souilly à proximité. Situé au 2ème étage d’une résidence de 3 niveaux bien entretenue et gérée, découvrez ce spacieux F3 de 80 m² et sa loggia, lumineux et très fonctionnel avec ses espaces de rangement, à deux pas de toutes commodités. Agencement : - Une entrée avec placards - Un bel espace de vie d’environ 33 m² composé du salon-salle à manger avec grande baie vitrée accès direct sur la loggia - Une cuisine équipée / aménagée indépendante - 2 grandes chambres de 12,50 m² avec dressing - Un coin buanderie / placard aménageable - Une salle de bains - Un WC séparé. Ses atouts : - La belle pièce de vie et son coin loggia pour vos moments de détentes - Son box de 17 m² environ et sa place de parking privative sécurisés - Sa situation géographique au plein coeur de Claye-Souilly - Classe énergétique C. À noter : - Ballon d'eau chaude récent - Digicode et interphone - Fibre optique - Résidence fermée avec portail motorisé - Chauffage électrique compteurs individuels - Grands axes autoroutiers à quelques minutes En résumer : - Idéal résidence principale ou investissement patrimonial sécurisé - Emplacement stratégique : à proximité immédiate du centre-ville, des commerces et du marché couvert, du canal de l’Ourcq, du parc Buffon et de toutes les infrastructures. Contactez-moi pour une visite ! (Pièce d'identité exigée avant toute visite – art. L.561-5 du CMF) La presente annonce immobiliere vise 3 lots situés dans une copropriété de 73 lots au total et ne faisant l'objet d'aucune procédure en cours citée à l'article L. 721-1 du code de la construction et de l'habitation. Montant moyen mensuel de charges déclaré par le vendeur : 131€ par mois (soit 1572 € annuel). Honoraires d'agence à la charge du vendeur. Information d'affichage énergétique sur ce bien : classe ENERGIE C indice 152 et classe CLIMAT A indice 4. Les informations sur les risques auxquels ce bien est exposé, y compris l'obligation légale de débroussaillement, sont disponibles sur le site Géorisques : http://www.georisques.gouv.fr. La présente annonce immobilière a été rédigée sous la responsabilité éditoriale de Mme Sylvie Le Clouerec mandataire indépendant en immobilier (sans détention de fonds), agent commercial de la SAS I@D France immatriculé au RSAC de Meaux sous le numéro 904998408, titulaire de la carte de démarchage immobilier pour le compte de la société I@D France SAS.
Ce mois Cette annonce est récente

À proximité

Recherche des commodités à proximité...

Détails de l'annonce

Localisation

Ville
Claye-Souilly
Pays
FR

Diagnostics / Énergie

Diagnostic DPE
152
Diagnostic GES
4

Surfaces / Pièces / Composition

Nombre d’étages
3
Étage
2

Chauffage et diagnostics

Diagnostic de performance énergétique (DPE)
a
b
c
d
e
f
g
Indice d'émission de gaz à effet de serre (GES)
a
b
c
d
e
f
g
Rappelez-moi