Type
Bien immobilierTarif
675 000 €Chambres
0Salles de bain
0Vente Terrain à bâtir 1 200 m²
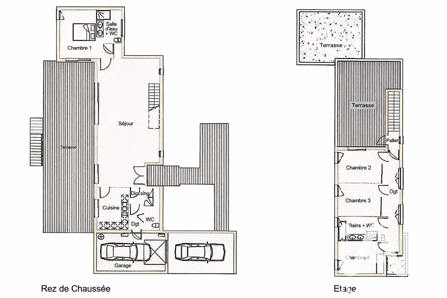
Iad France - Anthony Heymann vous propose : Situé à 3 km seulement de la Dune du Pilat et à 5 minutes de la plage du Pyla, ce terrain de plus de 1 200 m² offre un cadre privilégié, en lisière d’une forêt classée en zone naturelle et inconstructible. Bénéficiant d’une excellente exposition et totalement à l’abri des regards, il se trouve dans une zone résidentielle paisible, dans un environnement rare et préservé. Les commerces ainsi que les plages sont accessibles en quelques minutes. Un permis de construire définitif a été accordé pour la réalisation d’une maison d’architecte contemporaine à toit plat, développant 148 m² habitables et comprenant un garage et des terrasses. La construction n’ayant pas encore débuté, le projet peut être entièrement adapté, tant dans l’agencement intérieur que dans les aménagements extérieurs, afin de correspondre pleinement à vos attentes. Le projet prévoit notamment : - Une vaste pièce de vie avec cuisine ouverte d’environ 65 m², baignée de lumière - Quatre chambres avec rangements, dont une suite parentale en rez-de-chaussée avec salle d’eau - À l’étage : trois chambres de 12 m², ainsi qu’une salle de bain équipée d’une baignoire, d’une douche et de WC Un environnement d’exception pour concrétiser un projet immobilier haut de gamme, au cOEur de la nature et à proximité immédiate de l’océan. Les visuels présentés correspondent au permis de construire validé. Dossier complet et informations complémentaires disponibles sur demande. Le prix inclut exclusivement le terrain viabilisé. Honoraires d'agence à la charge du vendeur. Bien non soumis au DPE. Les informations sur les risques auxquels ce bien est exposé, y compris l'obligation légale de débroussaillement, sont disponibles sur le site Géorisques : http://www.georisques.gouv.fr. La présente annonce immobilière a été rédigée sous la responsabilité éditoriale de M Anthony Heymann mandataire indépendant en immobilier (sans détention de fonds), agent commercial de la SAS I@D France immatriculé au RSAC de bordeaux sous le numéro 824308506, titulaire de la carte de démarchage immobilier pour le compte de la société I@D France SAS.
Ce mois
Cette annonce est récente
À proximité
Recherche des commodités à proximité...
Détails de l'annonce
Localisation
Ville
La Teste-de-Buch
Pays
FR
Surfaces / Pièces / Composition
Nombre d’étages
Chauffage et diagnostics
Diagnostic de performance énergétique (DPE)
a
b
c
d
e
f
g
Indice d'émission de gaz à effet de serre (GES)
a
b
c
d
e
f
g
