Vente Appartement 3 pièces
Type
Bien immobilierTarif
120 000 €Chambres
2Salles de bain
0Vente Appartement 3 pièces
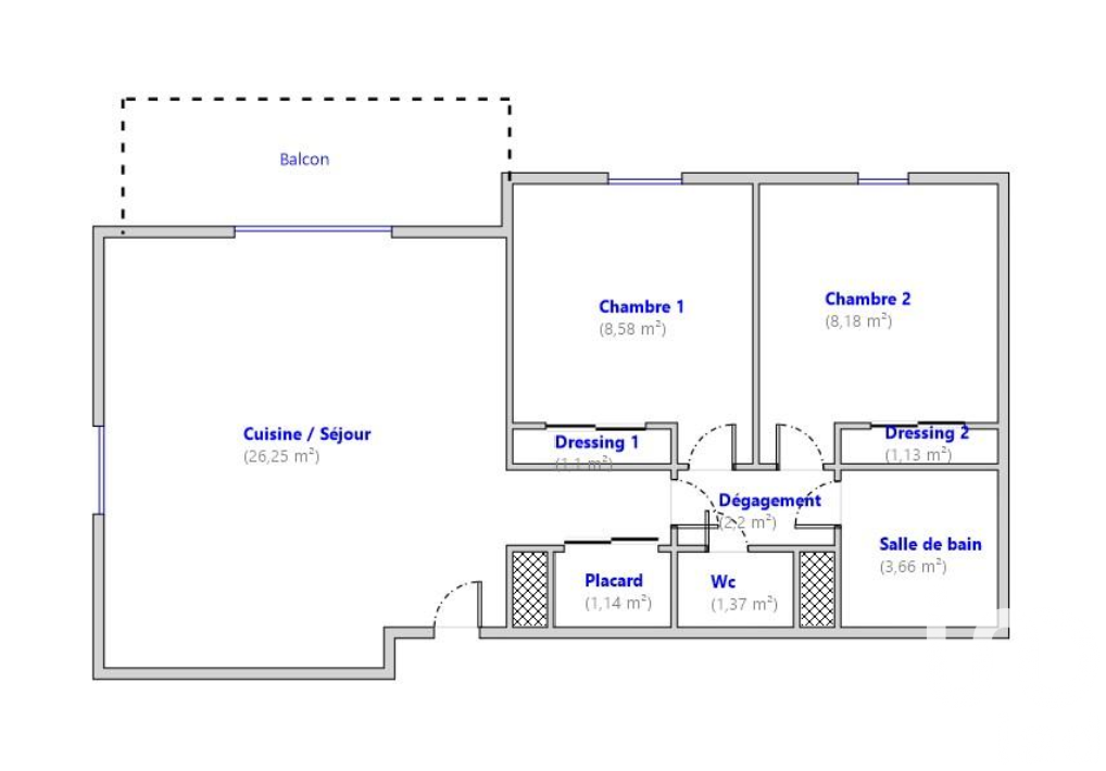
Iad France - Sophie Merlo vous propose : * Appartement Lumineux de 3 Pièces à Castelsarrasin * Bienvenue dans ce charmant appartement situé à Castelsarrasin, offrant un cadre de vie agréable et lumineux, idéal pour les amateurs de confort et de tranquillité. Situé au 2ème étage d'un bâtiment rénové de 2 niveaux, cet appartement de 53.61 m² se compose d'un séjour spacieux, d'une cuisine récente équipée, de deux chambres avec placard, d'une salle d'eau entièrement rénovée et d'un WC. Chaque espace a été pensé pour offrir fonctionnalité et confort. La présence d'un balcon permet de profiter d'un coin extérieur privé à l'abris des regards. L'appartement bénéficie d'un système de chauffage par climatisation réversible. Au sein de cette résidence sécurisée avec gardien, vous vivrez en toute sérénité et profiterez pleinement de votre espace personnel. Vous disposerez également dé 2 places de parking pour garer vos véhicules en toute tranquillité. L'emplacement privilégié de cet appartement vous permettra de bénéficier des commodités de la ville tout en profitant d'un environnement calme et paisible. Aménagements virtuels proposés photos 3 / 8 / 10 / 12. Ne manquez pas l'opportunité de visiter ce bien, idéal pour une première acquisition ou un investissement locatif. N'hésitez plus, contactez-moi pour une visite dès maintenant ! La presente annonce immobiliere vise 3 lots situés dans une copropriété de 277 lots au total et ne faisant l'objet d'aucune procédure en cours citée à l'article L. 721-1 du code de la construction et de l'habitation. Montant moyen mensuel de charges déclaré par le vendeur : 100€ par mois (soit 1200 € annuel). Honoraires d'agence à la charge du vendeur. Information d'affichage énergétique sur ce bien : classe ENERGIE C indice 135 et classe CLIMAT A indice 4. Les informations sur les risques auxquels ce bien est exposé, y compris l'obligation légale de débroussaillement, sont disponibles sur le site Géorisques : http://www.georisques.gouv.fr. La présente annonce immobilière a été rédigée sous la responsabilité éditoriale de Mme Sophie Merlo mandataire indépendant en immobilier (sans détention de fonds), agent commercial de la SAS I@D France immatriculé au RSAC de MONTAUBAN sous le numéro 919938761, titulaire de la carte de démarchage immobilier pour le compte de la société I@D France SAS.
Détails de l'annonce
Localisation
Ville
Castelsarrasin
Pays
FR
Diagnostics / Énergie
Diagnostic DPE
135
Diagnostic GES
4
Surfaces / Pièces / Composition
Nombre d’étages
2
Étage
2
Chauffage et diagnostics
Diagnostic de performance énergétique (DPE)
a
b
c
d
e
f
g
Indice d'émission de gaz à effet de serre (GES)
a
b
c
d
e
f
g
