Type
Bien immobilierTarif
345 000 €Chambres
2Salles de bain
0Vente Appartement 3 pièces
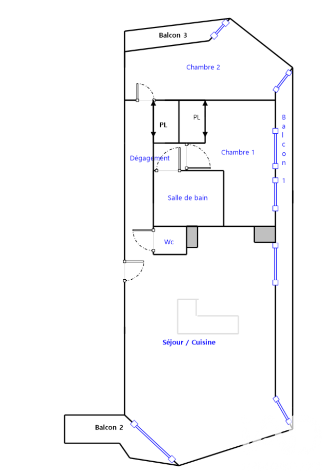
Iad France - Marie Barbin vous propose : À la recherche du cadre de vie idéal pour vous ou votre famille ? Ne cherchez plus ! Cet appartement incroyable, IDEALEMENT situé à Créteil, offre le parfait équilibre entre confort, commodité et charme naturel. Niché à proximité du lac de Créteil, des transports en commun et d'un centre commercial dynamique, cet appartement de qualité vous promet un quotidien des plus agréables. Imaginez-vous profiter des loisirs au bord du lac, faire vos courses aisément et vous déplacer en toute facilité vers Paris et ses environs. À l'intérieur, vous découvrirez de grands espaces, LUMINEUX et accueillants, conçus pour répondre aux besoins de votre famille. RENOVE intégralement il y a deux ans avec de belles finitions et une attention portée aux détails, chaque instant passé dans cet appartement sera synonyme de confort et de bien-être. L'appartement se compose d'une entrée, une cuisine ouverte sur le séjour baigné de lumière donnant sur un balcon avec vue sur le lac. Un couloir vous mène à l'espace nuit, composé de deux chambres, une salle de bains et d'un wc. Une cave et un box avec un LOCAL complètent ce bien. Contactez-moi dès maintenant pour organiser une visite et laissez-vous séduire par ce lieu où il fait bon vivre ! Honoraires d'agence à la charge du vendeur. Information d'affichage énergétique sur ce bien : classe ENERGIE E indice 252 et classe CLIMAT C indice 20. Les informations sur les risques auxquels ce bien est exposé, y compris l'obligation légale de débroussaillement, sont disponibles sur le site Géorisques : http://www.georisques.gouv.fr. La présente annonce immobilière a été rédigée sous la responsabilité éditoriale de Mme Marie Barbin mandataire indépendant en immobilier (sans détention de fonds), agent commercial de la SAS I@D France immatriculé au RSAC de CRETEIL sous le numéro 899953327, titulaire de la carte de démarchage immobilier pour le compte de la société I@D France SAS.
Ce mois
Cette annonce est récente
À proximité
Recherche des commodités à proximité...
Détails de l'annonce
Localisation
Ville
Créteil
Pays
FR
Diagnostics / Énergie
Diagnostic DPE
252
Diagnostic GES
20
Surfaces / Pièces / Composition
Nombre d’étages
7
Étage
7
Chauffage et diagnostics
Diagnostic de performance énergétique (DPE)
a
b
c
d
e
f
g
Indice d'émission de gaz à effet de serre (GES)
a
b
c
d
e
f
g
