Type
Bien immobilierTarif
485 000 €Chambres
5Salles de bain
0Vente Maison/villa 6 pièces
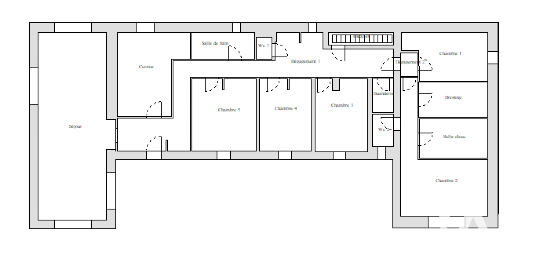
Iad France - Caroline Barral vous propose : Uchaud - Spacieuse villa rénovée tout confort – 178 m² sur 1 100 m² de terrain avec piscine - garage ou second logement possible À seulement 15 minutes de Nîmes et 35 minutes de Montpellier, découvrez cette magnifique villa de type 6 entièrement rénovée, alliant confort, modernité et luminosité. Implantée sur un terrain de 1 100 m² clos, elle dispose d’une piscine avec plage, d’une terrasse de 50 m², d’un grand parking et d’un terrain de pétanque. Elle offre 5 chambres dont une suite parentale de 32 m² avec dressing, salle d’eau et WC. Le lumineux séjour est idéal pour la vie de famille et la convivialité. La cuisine est meublée et équipée, et de nombreux rangements complètent l’intérieur, ainsi qu’une buanderie pratique. En sous-sol, une cave, un garage de 46 m² et une dépendance de 15 m² offrent des espaces supplémentaires polyvalents, pouvant être conservés en garage ou transformés en logement indépendant ou en local pour profession libérale selon vos besoins. Cette villa bénéficie de prestations haut de gamme pour un confort optimal : domotique complète, climatisation réversible gainable, aspirateur centralisé, chauffe-eau thermodynamique, panneaux photovoltaïques, etc. Elle est lumineuse, fonctionnelle, exposée sud et ne nécessite aucun travaux. Située dans un quartier calme, et résidentiel, proche de toutes commodités, elle est prête à accueillir ses nouveaux propriétaires : il ne vous reste plus qu’à poser vos valises. Inter-agences avec plaisir. Honoraires d'agence à la charge du vendeur. Information d'affichage énergétique sur ce bien : classe ENERGIE A indice 66 et classe CLIMAT A indice 2. Les informations sur les risques auxquels ce bien est exposé, y compris l'obligation légale de débroussaillement, sont disponibles sur le site Géorisques : http://www.georisques.gouv.fr. La présente annonce immobilière a été rédigée sous la responsabilité éditoriale de Mme Caroline Barral mandataire indépendant en immobilier (sans détention de fonds), agent commercial de la SAS I@D France immatriculé au RSAC de Nîmes sous le numéro 488240011, titulaire de la carte de démarchage immobilier pour le compte de la société I@D France SAS.
À proximité
Recherche des commodités à proximité...
Détails de l'annonce
Localisation
Ville
Uchaud
Pays
FR
Diagnostics / Énergie
Diagnostic DPE
66
Diagnostic GES
2
Chauffage et diagnostics
Diagnostic de performance énergétique (DPE)
a
b
c
d
e
f
g
Indice d'émission de gaz à effet de serre (GES)
a
b
c
d
e
f
g
