Trouver...

Language: FR

Devise: EUR

Type
Bien immobilier
Tarif
229 000 €
Chambres
3
Salles de bain
0

Vente Appartement 4 pièces

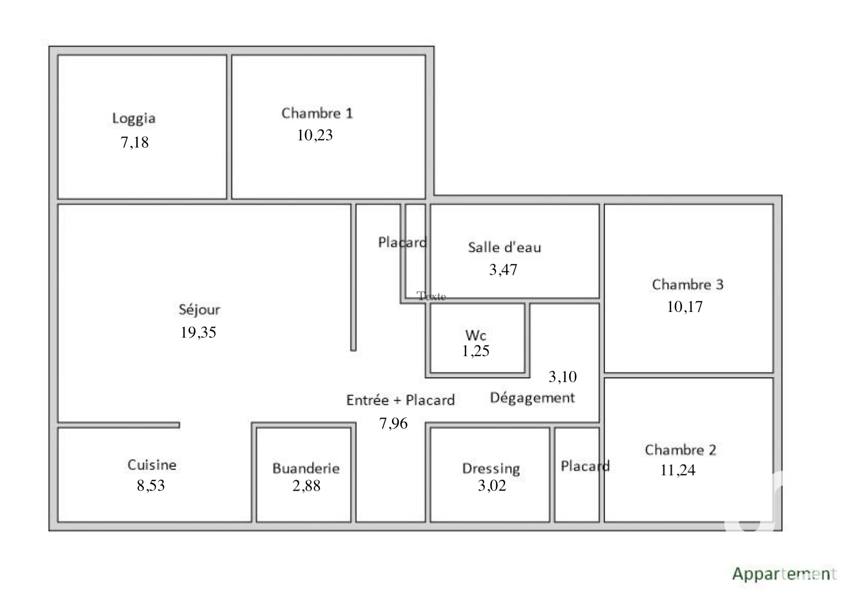
Iad France - Sinley Semelin vous propose : Découvrez ce bel appartement lumineux de 4 pièces, d’environ 88 m², offrant un cadre de vie confortable et fonctionnel idéal pour toute la famille. Situé au 2ᵉ étage sur 3 d’une résidence sécurisée avec badge, dans le quartier recherché des Loges à Sannois, cet appartement vous séduira. Agencement : - Entrée de 8m. ² avec placards intégrés (portes coulissantes miroir) - Séjour-salle à manger de 19m. ² spacieux avec cuisine ouverte de 8m. 2, exposition Ouest et volets roulants électriques - Buanderie de 3m. ² attenante à la cuisine, idéal pour le rangement et les équipements - Loggia de 7m. ² fermée par baies vitrées coulissantes, actuellement utilisée comme bureau - 3 belles chambres d'environ 10m. ², exposées Est, dont une avec double placard intégré Possibilité de transformer une chambre en double séjour en supprimant une cloison - Dressing de 3m. ² - Salle d’eau de 4m. ² rénovée avec grande douche, meuble vasque, sèche-serviettes - Water-closet séparé Atouts supplémentaires : - Box fermé sécurisé en sous-sol, accessible facilement par ascenseur avec code Possibilité d’installer une borne de recharge électrique, idéale pour les véhicules modernes - Local à vélos et poussettes pratique et sécurisé dans le hall d’entrée - Résidence calme, bien entretenue et conviviale - Parc de jeux clôturé pour les enfants - Appartement entièrement rénové en 2022, prêt à vous accueillir Côté pratique : - Crèche, école, collège à 5 min à pied – lycée à 15 min - Supérette, boulangerie, centre médical, salle de sport à proximité - Centre commercial Cora à 10 min à pied ou en bus - Accès rapide A15 / A115 / N184 Transports : lignes de bus vers la gare d’Ermont-Eaubonne (RER C, lignes H et J) et le centre-ville Informations pratiques : - Les charges mensuelles incluent le chauffage, l’eau froide ainsi que les charges de copropriété. - Taxe foncière : 1 900 € / an Pour découvrir tout son potentiel et vous projeter dans votre futur chez-vous, n’hésitez plus : contactez-moi dès aujourd’hui pour organiser une visite. Faites le premier pas vers votre nouveau chez-vous ! La presente annonce immobiliere vise 2 lots situés dans une copropriété de 313 lots au total et ne faisant l'objet d'aucune procédure en cours citée à l'article L. 721-1 du code de la construction et de l'habitation. Montant moyen mensuel de charges déclaré par le vendeur : 285€ par mois (soit 3420 € annuel). Honoraires d'agence à la charge du vendeur. Information d'affichage énergétique sur ce bien : classe ENERGIE C indice 153 et classe CLIMAT B indice 8. Les informations sur les risques auxquels ce bien est exposé, y compris l'obligation légale de débroussaillement, sont disponibles sur le site Géorisques : http://www.georisques.gouv.fr. La présente annonce immobilière a été rédigée sous la responsabilité éditoriale de Mme Sinley Semelin mandataire indépendant en immobilier (sans détention de fonds), agent commercial de la SAS I@D France immatriculé au RSAC de Pontoise sous le numéro 792327967, titulaire de la carte de démarchage immobilier pour le compte de la société I@D France SAS.

Détails de l'annonce

Localisation

Ville
Sannois
Pays
FR

Diagnostics / Énergie

Diagnostic DPE
153
Diagnostic GES
8

Surfaces / Pièces / Composition

Nombre d’étages
3
Étage
2

Chauffage et diagnostics

Diagnostic de performance énergétique (DPE)
a
b
c
d
e
f
g
Indice d'émission de gaz à effet de serre (GES)
a
b
c
d
e
f
g
Rappelez-moi
Nos partenaires