Trouver...

Language: FR

Devise: EUR

Vente Appartement 4 pièces

Publié le 3 January 2026
Type
Bien immobilier
Tarif
894 000 €
Chambres
3
Salles de bain
0

Vente Appartement 4 pièces

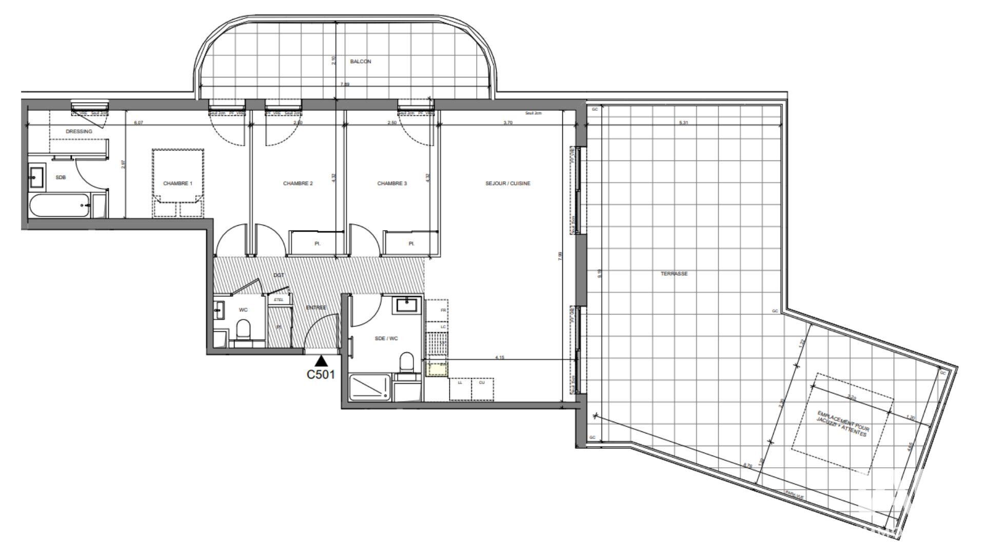
Iad France - Sarah Rozière (06 99 86 19 42) vous propose : Appartement T4 avec terrasse à Saint-Laurent-du-Var. Située chemin des Paluds à Saint-Laurent-du-Var, la résidence Valmer propose une architecture contemporaine soignée au sein d’un environnement résidentiel agréable. À proximité des plages et du port de plaisance, cette adresse offre un cadre de vie confortable avec des prestations de qualité. Disponible 2028. Un appartement raffiné : Situé au 5 ème étage, cet appartement T4 de 85 m² environ habitables se prolonge par une grande terrasse de 71 m² environ. - Séjour / cuisine de 34 m² environ. - Trois chambres confortables. - Salle de bains et salle d'eau modernes équipées. - Annexe incluse : Box double. De belles prestations : - Chauffage et rafraîchissement par pompe à chaleur. - Volets roulants motorisés et menuiseries aluminium double vitrage. - Piscine commune avec plages solarium au cOEur du jardin paysager. - Résidence sécurisée avec vidéophone, ascenseur et stationnements en sous-sol. L’art de vivre à Saint-Laurent-du-Var : - À quelques minutes à pied des plages et du port de plaisance. - Commerces et services accessibles rapidement. - Accès facile à Nice, à l’aéroport et aux principaux axes routiers. - Quartier résidentiel recherché et agréable au quotidien. N’hésitez pas à me contacter pour plus d’informations ou pour un accompagnement sur mesure. Honoraires d’agence à la charge du vendeur. Bien non soumis au DPE. Les informations sur les risques auxquels ce bien est exposé sont disponibles sur le site Géorisques : www.georisques.gouv.fr. La présente annonce immobilière a été rédigée sous la responsabilité éditoriale de Mlle Sarah Rozière EI (ID 83696), mandataire indépendant en immobilier (sans détention de fonds), agent commercial de la SAS I@D France immatriculé au RSAC de Clermont-Ferrand sous le numéro 978616993, titulaire de la carte de démarchage immobilier pour le compte de la société I@D France SAS. Retrouvez tous nos biens sur notre site internet. www.iadfrance.fr.

À proximité

Recherche des commodités à proximité...

Détails de l'annonce

Localisation

Ville
Saint-Laurent-du-Var
Pays
FR

Surfaces / Pièces / Composition

Nombre d’étages
5
Étage
5

Chauffage et diagnostics

Diagnostic de performance énergétique (DPE)
a
b
c
d
e
f
g
Indice d'émission de gaz à effet de serre (GES)
a
b
c
d
e
f
g
Rappelez-moi