Trouver...

Language: FR

Devise: EUR

Vente Appartement 2 pièces

Publié le 26 November 2025
Type
Bien immobilier
Tarif
185 000 €
Chambres
1
Salles de bain
0

Vente Appartement 2 pièces

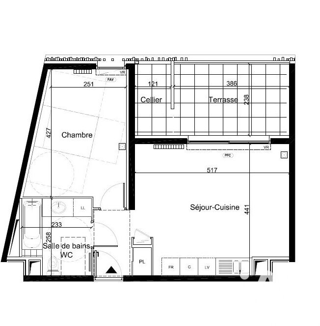
Iad France - Dimitri Contaret vous propose : OPPORTUNITE INVESTISSEUR À Saint-Jean-de-Védas, découvrez cet appartement loué situé dans une résidence de haut standing offrant des prestations rares : salle de coworking, superbe piscine, espaces soignés et sécurisés. Au 1er étage avec ascenseur, il se compose d’un séjour lumineux avec cuisine ouverte, une chambre, une salle de bain avec WC et d’une agréable terrasse idéale pour profiter des beaux jours. Un parking souterrain avec place privative complète ce bien. Un cadre de vie confortable et recherché, à proximité des commodités et des transports. La presente annonce immobiliere vise 2 lots situés dans une copropriété de 375 lots au total et ne faisant l'objet d'aucune procédure en cours citée à l'article L. 721-1 du code de la construction et de l'habitation. Montant moyen mensuel de charges déclaré par le vendeur : 167€ par mois (soit 2004 € annuel). Honoraires d'agence à la charge du vendeur. Information d'affichage énergétique sur ce bien : classe ENERGIE C indice 80 et classe CLIMAT C indice 13. Les informations sur les risques auxquels ce bien est exposé, y compris l'obligation légale de débroussaillement, sont disponibles sur le site Géorisques : http://www.georisques.gouv.fr. La présente annonce immobilière a été rédigée sous la responsabilité éditoriale de M Dimitri Contaret mandataire indépendant en immobilier (sans détention de fonds), agent commercial de la SAS I@D France immatriculé au RSAC de MONTPELLIER sous le numéro 878173079, titulaire de la carte de démarchage immobilier pour le compte de la société I@D France SAS.

À proximité

Recherche des commodités à proximité...

Détails de l'annonce

Localisation

Ville
Saint-Jean-de-Védas
Pays
FR

Diagnostics / Énergie

Diagnostic DPE
80
Diagnostic GES
13

Surfaces / Pièces / Composition

Nombre d’étages
4

Chauffage et diagnostics

Diagnostic de performance énergétique (DPE)
a
b
c
d
e
f
g
Indice d'émission de gaz à effet de serre (GES)
a
b
c
d
e
f
g
Rappelez-moi