Type
Bien immobilierTarif
168 000 €Chambres
1Salles de bain
0Vente Appartement 2 pièces
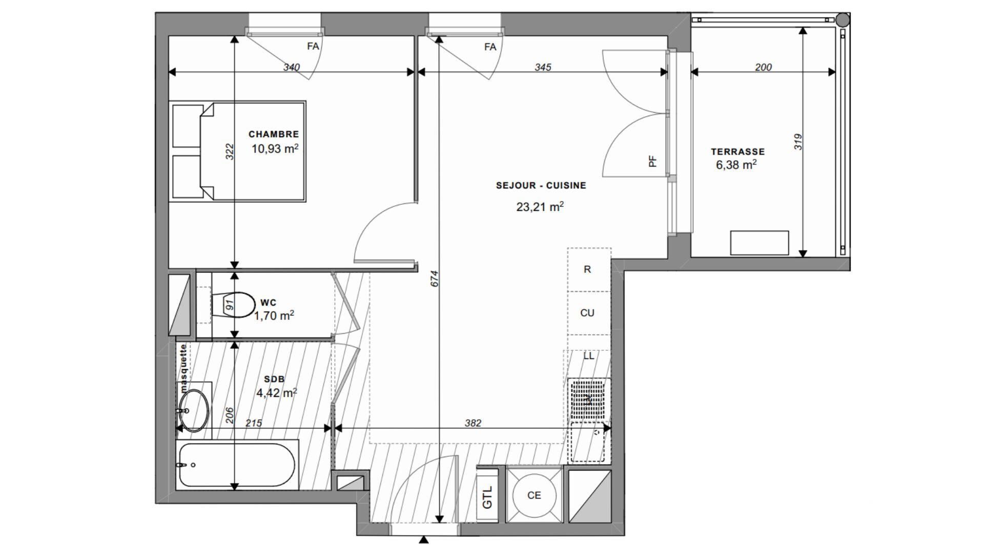
Iad France - Solenne Pineau vous propose : LA CHAPELLE-SUR-ERDRE - ALLEE DE L'ÉTANG - T2 - TERRASSE - CAVE - PARKING. Venez découvrir ce spacieux appartement T2 de 52 m² situé au rez-de-chaussée. Il se compose d’une entrée avec placard, d’un séjour de 21.55 m² donnant sur une terrasse de 10.25 m² exposée plein sud bordée d'une haie végétale, d’une cuisine indépendante aménagée et équipée (plaque de cuisson), d'une chambre avec placard de 11.52 m², d’une salle de bain ainsi que de WC séparés. Un parking aérien et une cave complètent ce bien. Les + : à personnaliser selon vos goûts, lumineux, vue sur la verdure depuis le salon, chauffage individuel, à 8 min à pied de l'Intermarché, à deux pas du bus 86. Parfait pour un premier achat ou un investissement locatif, ce bien saura vous séduire par sa luminosité et son agencement fonctionnel. Une visite s'impose ! N'hésitez pas à me contacter, je suis disponible 7jours / 7 pour répondre à vos questions ! La presente annonce immobiliere vise 3 lots situés dans une copropriété de 103 lots au total et ne faisant l'objet d'aucune procédure en cours citée à l'article L. 721-1 du code de la construction et de l'habitation. Montant moyen mensuel de charges déclaré par le vendeur : 61.67€ par mois (soit 740 € annuel). Honoraires d'agence à la charge du vendeur. Information d'affichage énergétique sur ce bien : classe ENERGIE D indice 199 et classe CLIMAT B indice 7. Les informations sur les risques auxquels ce bien est exposé, y compris l'obligation légale de débroussaillement, sont disponibles sur le site Géorisques : http://www.georisques.gouv.fr. La présente annonce immobilière a été rédigée sous la responsabilité éditoriale de Mme Solenne Pineau mandataire indépendant en immobilier (sans détention de fonds), agent commercial de la SAS I@D France immatriculé au RSAC de NANTES sous le numéro 897903399, titulaire de la carte de démarchage immobilier pour le compte de la société I@D France SAS.
Cette semaine
Cette annonce est récente
À proximité
Recherche des commodités à proximité...
Détails de l'annonce
Localisation
Ville
La Chapelle-sur-Erdre
Pays
FR
Diagnostics / Énergie
Diagnostic DPE
199
Diagnostic GES
7
Surfaces / Pièces / Composition
Nombre d’étages
2
Chauffage et diagnostics
Diagnostic de performance énergétique (DPE)
a
b
c
d
e
f
g
Indice d'émission de gaz à effet de serre (GES)
a
b
c
d
e
f
g
