Type
Bien immobilierTarif
220 000 €Chambres
3Salles de bain
0Vente Maison de village 4 pièces
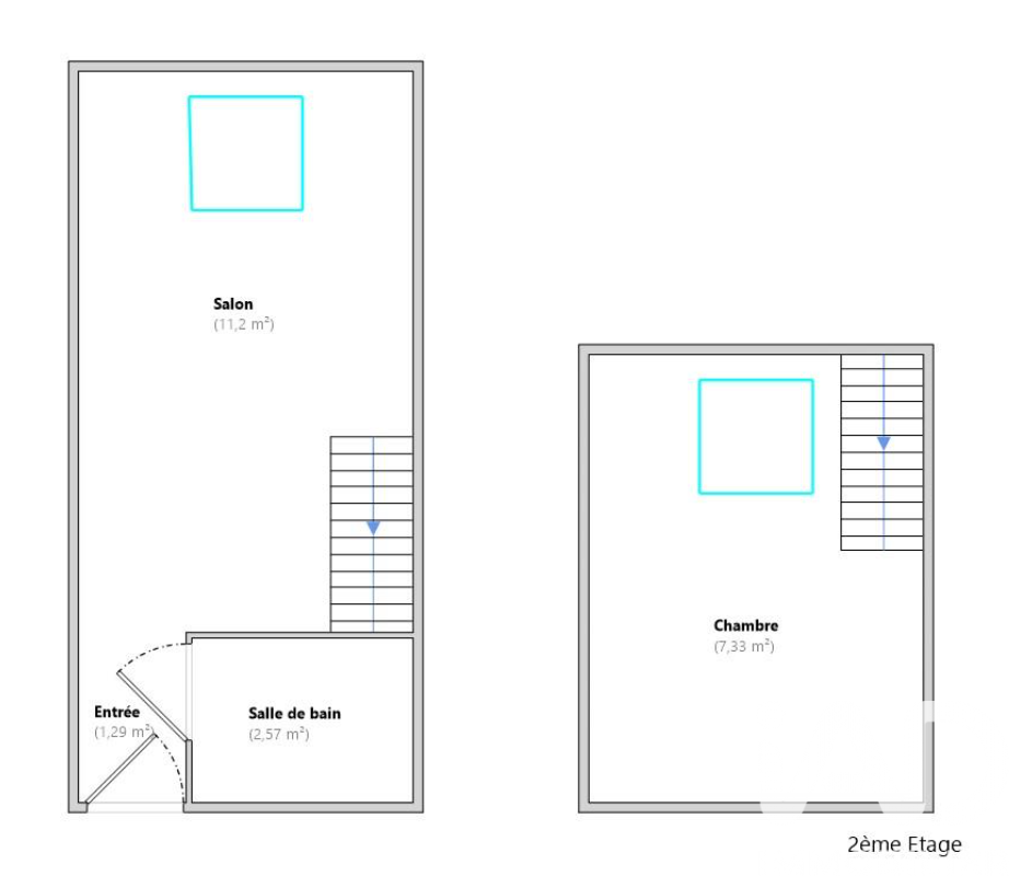
Iad France - Noémie Roche vous propose : Cette charmante maison de 124 m² rénovée situé au coeur de Mayol sur trois niveaux saura vous séduire par son charme et son caractère. Au rez de chaussée vous y trouverez une entrée avec placard qui dessert un escalier menant au niveau inférieur où se trouve une buanderie, un WC, ainsi qu'une première chambre que vous pourrez transformé en suite parentale, Au première étage, vous découvrirez un séjour de 45 m² dont une cuisine ouverte entièrement équipée. Au deuxième étage, desservie par un magnifique couloir vous y trouverez deux belles chambres lumineuses, une salle d'eau et un second WC séparé La terrasse de 100 m² et un garage privatif de 35 m² avec mezzanine non attenant à la maison, orientée plein sud, vous invite à profiter des journées ensoleillées en toute intimité. Côté équipements, cette maison bénéficie du confort moderne avec la fibre optique, un système de ventilation mécanique (VMC) et un chauffage individuel par radiateurs alimentés par l'électricité et les panneaux photovoltaïques avec revente du surplus pour une consommation d'énergie économique. Contactez-moi dès maintenant pour organiser une visite et découvrir ce véritable petit coin de paradis dans le village de Mayol. Honoraires d'agence à la charge du vendeur. Information d'affichage énergétique sur ce bien : classe ENERGIE D indice 230 et classe CLIMAT B indice 7. Les informations sur les risques auxquels ce bien est exposé, y compris l'obligation légale de débroussaillement, sont disponibles sur le site Géorisques : http://www.georisques.gouv.fr. La présente annonce immobilière a été rédigée sous la responsabilité éditoriale de Mme Noémie Roche mandataire indépendant en immobilier (sans détention de fonds), agent commercial de la SAS I@D France immatriculé au RSAC de PUY EN VELAIS sous le numéro 923158430, titulaire de la carte de démarchage immobilier pour le compte de la société I@D France SAS.
À proximité
Recherche des commodités à proximité...
Détails de l'annonce
Localisation
Ville
Malvalette
Pays
FR
Diagnostics / Énergie
Diagnostic DPE
230
Diagnostic GES
7
Surfaces / Pièces / Composition
Nombre d’étages
3
Chauffage et diagnostics
Diagnostic de performance énergétique (DPE)
a
b
c
d
e
f
g
Indice d'émission de gaz à effet de serre (GES)
a
b
c
d
e
f
g
