Trouver...

Language: FR

Devise: EUR

Vente Appartement 4 pièces

Publié le 11 March 2026
Type
Bien immobilier
Tarif
261 000 €
Chambres
2
Salles de bain
0

Vente Appartement 4 pièces

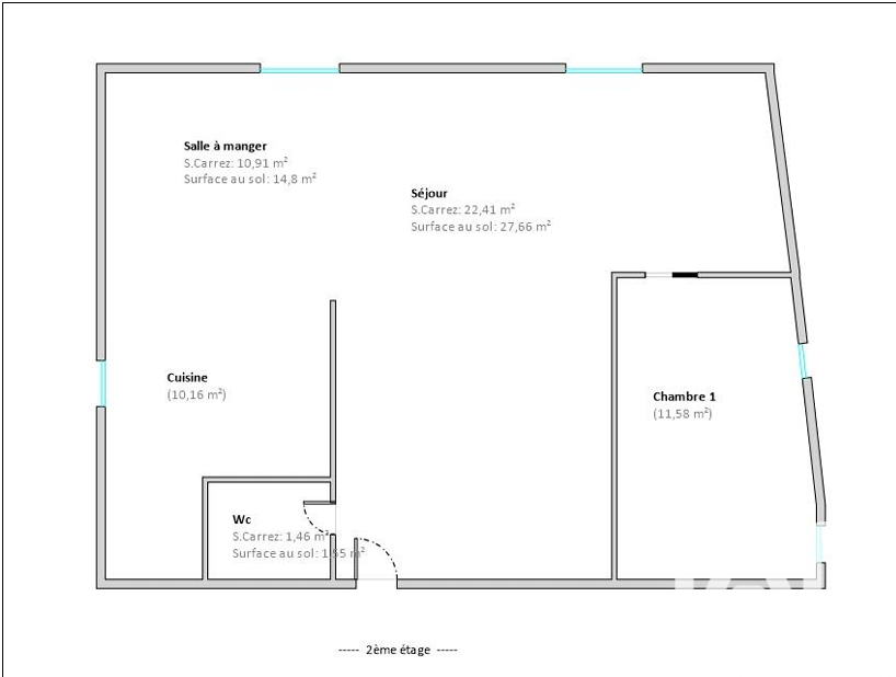
Iad France - Delphine Antippas vous propose : DUPLEX MASSY LE PILEUX – PETITE COPROPRIÉTÉ – FAIBLES CHARGES Certains appartements ne ressemblent à aucun autre. Au cOEur du quartier du Pileux à Massy, certaines adresses portent encore le souvenir de la solidarité du village. Située rue de l’Effort Mutuel - une rue historique reliant Massy à Palaiseau - cette petite propriété accueillait autrefois l’épicerie du quartier, s'est transformée au fil du temps en une copropriété de huit logements. Au dernier étage, ce duplex de 125 m² au sol révèle des volumes généreux et une organisation particulièrement agréable à vivre. L’entrée ouvre sur une pièce de vie d’environ 32 m² composée d’un séjour et d’une cuisine aménagée et équipée. L’ensemble profite d’un volume ouvert et lumineux, mis en valeur par un mur en briques et un escalier hélicoïdal qui donnent à l’espace une véritable personnalité. Ce niveau accueille également une chambre ainsi que des toilettes séparées. À l’étage, l’espace nuit se prolonge avec une seconde chambre, un palier avec placard, puis une salle de bain mixte avec baignoire, douche et WC. Équipements : fenêtres PVC double vitrage à isolation renforcée, Velux avec détecteur de pluie et domotique intégrée, volets roulants motorisés, radiateurs à inertie avec programmateur pièce par pièce, chauffe-eau électrique 150l, VMC, fibre optique, ravalement extérieur réalisé en 2023. Un appartement au caractère singulier, situé dans un quartier dynamique et bien connecté de Massy : proximité des commerces, des écoles et des transports, ainsi que d’un accès rapide aux grands axes et à la gare Massy-Palaiseau. Visite virtuelle disponible sur demande. Parce qu’un appartement comme celui-ci se découvre toujours mieux sur place, prenons rendez-vous ! Chers confrères, ce bien est ouvert à l’intercabinet dans l’intérêt de nos clients communs. La presente annonce immobiliere vise 1 lot situé dans une copropriété de 11 lots au total et ne faisant l'objet d'aucune procédure en cours citée à l'article L. 721-1 du code de la construction et de l'habitation. Montant moyen mensuel de charges déclaré par le vendeur : 70.33€ par mois (soit 844 € annuel). Honoraires d'agence à la charge du vendeur. Information d'affichage énergétique sur ce bien : classe ENERGIE E indice 308 et classe CLIMAT C indice 12. Les informations sur les risques auxquels ce bien est exposé, y compris l'obligation légale de débroussaillement, sont disponibles sur le site Géorisques : http://www.georisques.gouv.fr. La présente annonce immobilière a été rédigée sous la responsabilité éditoriale de Mme Delphine Antippas mandataire indépendant en immobilier (sans détention de fonds), agent commercial de la SAS I@D France immatriculé au RSAC de EVRY sous le numéro 814830774, titulaire de la carte de démarchage immobilier pour le compte de la société I@D France SAS.
Cette semaine Cette annonce est récente

À proximité

Recherche des commodités à proximité...

Détails de l'annonce

Localisation

Ville
Massy
Pays
FR

Diagnostics / Énergie

Diagnostic DPE
308
Diagnostic GES
12

Surfaces / Pièces / Composition

Nombre d’étages
2
Étage
2

Chauffage et diagnostics

Diagnostic de performance énergétique (DPE)
a
b
c
d
e
f
g
Indice d'émission de gaz à effet de serre (GES)
a
b
c
d
e
f
g
Rappelez-moi