Type
Bien immobilierTarif
292 000 €Chambres
2Salles de bain
0Vente Appartement 3 pièces
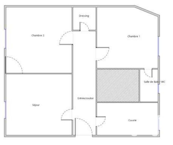
Iad France - Eric BELANGEON vous propose : Charmant 3 pièces de 48 m² environ au fort potentiel, avec CAVE ! Spécial PRIMO Accédant, petite FAMILLE, ou INVESTISSEUR ! Vous cherchez un petit cocon au charme de l’ancien, idéalement localisé aux portes de Paris, et à proximité de l’ensemble des commodités ? Ce bien est fait pour vous ! Situé au 4é étage et dernier étage d’une résidence à taille humaine et sécurisée (digicode), vous bénéficiez d'un emplacement privilégié et stratégique, proche des commerces (500m), école (élémentaire P. Brossolette), et des transports (Tram et Métro 3 min à pieds, Lignes 3 / 7 et 14). Cet appartement traversant et très lumineux, vous offre une belle distribution des espaces, et se compose : D'une entrée, d'un dégagement, d’une pièce de vie baignée de lumière et à la vue dégagée, d’une cuisine séparée aménagée et fonctionnelle, d'une spacieuse chambre parentale de 13 m², d’une chambre d’enfant (ou Bureau), d’un dressing / cellier vous offrant un bel espace de rangement supplémentaire, et d’une salle de bains avec wc. Chaque pièce est sublimée par une cheminée en marbre d’époque, de moulures et de parquet en chêne, apportant à cet appartement un cachet indéniable. Son agencement optimal vous confère un plan idéal sans aucune perte de place ! TRES BON RENDEMENT locatif, et fort POTENTIEL pour ce 3 pièces qui est une vraie pépite ! Une CAVE permettant en sous-sol complète le bien. RARE sur le secteur, soyez les premiers à visiter ce joli cocon qui saura vous séduire par son emplacement de 1er choix, sa luminosité, ses faibles charges et son rendement ! Conseiller disponible 24 / 7 au 0 6.85. 21.77. 02 La presente annonce immobiliere vise 2 lots situés dans une copropriété de 34 lots au total et ne faisant l'objet d'aucune procédure en cours citée à l'article L. 721-1 du code de la construction et de l'habitation. Montant moyen mensuel de charges déclaré par le vendeur : 102.92€ par mois (soit 1235 € annuel). Honoraires d'agence à la charge du vendeur. Information d'affichage énergétique sur ce bien : classe ENERGIE F indice 340 et classe CLIMAT C indice 20. Les informations sur les risques auxquels ce bien est exposé, y compris l'obligation légale de débroussaillement, sont disponibles sur le site Géorisques : http://www.georisques.gouv.fr. La présente annonce immobilière a été rédigée sous la responsabilité éditoriale de M Eric BELANGEON mandataire indépendant en immobilier (sans détention de fonds), agent commercial de la SAS I@D France immatriculé au RSAC de Nanterre sous le numéro 899880041, titulaire de la carte de démarchage immobilier pour le compte de la société I@D France SAS.
Ce mois
Cette annonce est récente
À proximité
Recherche des commodités à proximité...
Détails de l'annonce
Localisation
Ville
Le Kremlin-Bicêtre
Pays
FR
Diagnostics / Énergie
Diagnostic DPE
340
Diagnostic GES
20
Surfaces / Pièces / Composition
Nombre d’étages
4
Étage
4
Chauffage et diagnostics
Diagnostic de performance énergétique (DPE)
a
b
c
d
e
f
g
Indice d'émission de gaz à effet de serre (GES)
a
b
c
d
e
f
g
