Type
Bien immobilierTarif
231 000 €Chambres
3Salles de bain
0Vente Longère 5 pièces
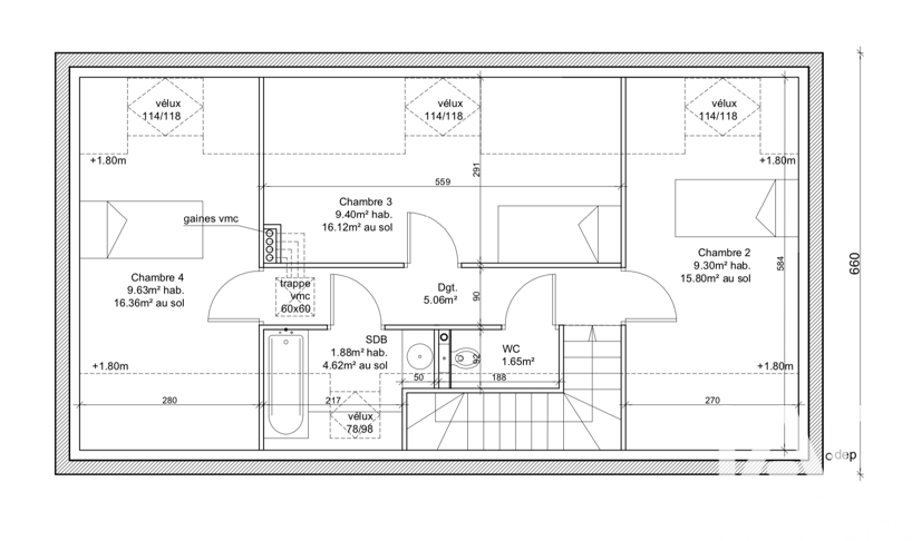
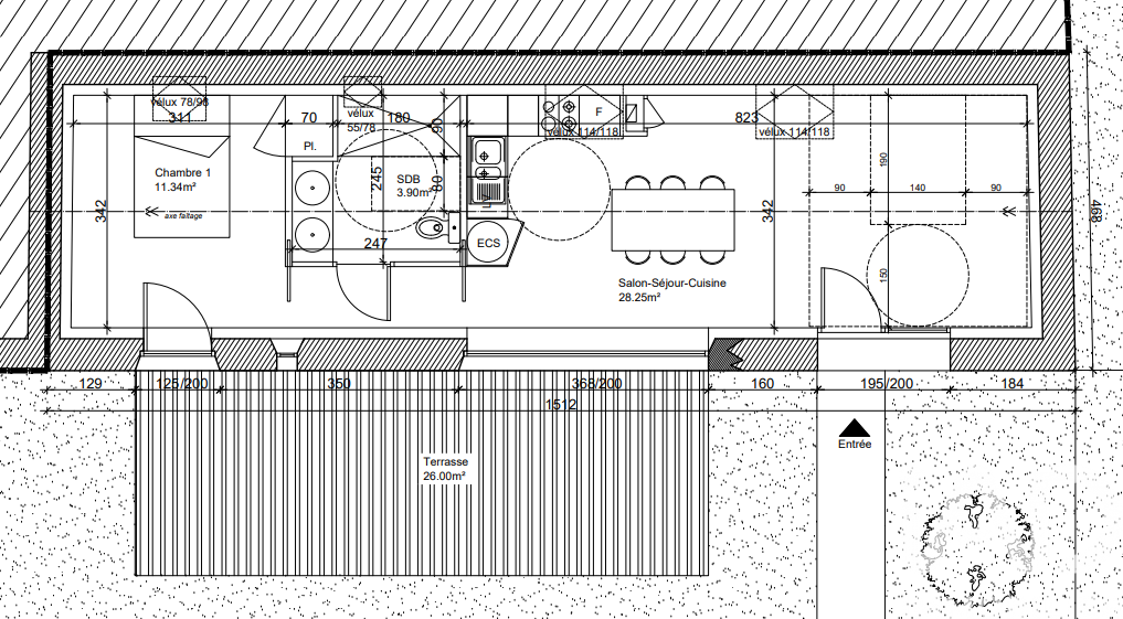
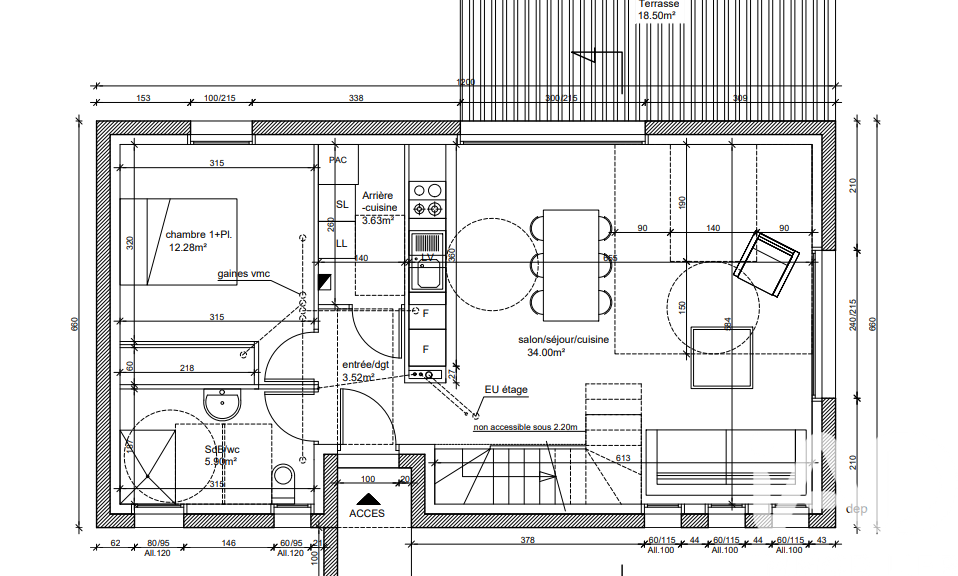
Iad France - Marie Poupelin vous propose : Charmante maison de caractère rénovée, située au cOEur du bourg de Boulogne, au calme et à l’abri des regards. Cette maison offre une belle pièce de vie lumineuse de plus de 27 m², mettant en valeur le charme de la pierre. Baignée de lumière grâce à sa baie vitrée, elle est équipée d’un poêle à bois, idéal pour des moments chaleureux en toute saison. Vous disposerez également d’une cuisine aménagée et équipée d’environ 14 m², fonctionnelle, avec un accès direct à la buanderie ainsi qu’à l’extérieur, où se trouve une agréable terrasse en bois. L’espace nuit se compose de trois chambres spacieuses, comprises entre 14 et 20 m², parfaitement adaptées à une vie de famille. La salle de bain est équipée d’une grande douche à l’italienne et d’une baignoire. Un WC séparé ainsi que de nombreux rangements complètent l’ensemble. À l’étage, une plateforme d’environ 90 m², déjà isolée, avec ouvertures récentes et arrivée d’électricité, offre un fort potentiel d’aménagement selon vos besoins : chambres supplémentaires, suite parentale, espace de travail. À l’extérieur, vous bénéficierez d’une dépendance en pierre de 34 m² avec dalle béton, idéale pour du stockage, un atelier ou tout autre projet. Le bien se situe en zone urbaine, permettant des possibilités de construction supplémentaires, telles qu’un garage ou une extension. Assainissement collectif (tout-à-l’égout). Diagnostic de performance énergétique : classe D. Maison très bien entretenue, offrant un cadre de vie paisible et de nombreuses possibilités d’évolution. Honoraires d'agence à la charge du vendeur. Information d'affichage énergétique sur ce bien : classe ENERGIE D indice 231 et classe CLIMAT D indice 47. Les informations sur les risques auxquels ce bien est exposé, y compris l'obligation légale de débroussaillement, sont disponibles sur le site Géorisques : http://www.georisques.gouv.fr. La présente annonce immobilière a été rédigée sous la responsabilité éditoriale de Mme Marie Poupelin mandataire indépendant en immobilier (sans détention de fonds), agent commercial de la SAS I@D France immatriculé au RSAC de LA ROCHE SUR YON sous le numéro 910180108, titulaire de la carte de démarchage immobilier pour le compte de la société I@D France SAS.
Cette semaine
Cette annonce est récente
À proximité
Recherche des commodités à proximité...
Détails de l'annonce
Localisation
Ville
Essarts-en-Bocage
Pays
FR
Diagnostics / Énergie
Diagnostic DPE
234
Diagnostic GES
47
Surfaces / Pièces / Composition
Nombre d’étages
Chauffage et diagnostics
Diagnostic de performance énergétique (DPE)
a
b
c
d
e
f
g
Indice d'émission de gaz à effet de serre (GES)
a
b
c
d
e
f
g
